ohne-makler
Exposé drucken

Das Erfinderhaus mit Hallenbad

Pflasterwiese 7, 65510 Walsdorf – Hessen
680.000 €
7
Zimmer
247 m²
Wohnfläche
875 m²
Grundstücksfläche
Privatangebot
Haus
Einfamilienhaus

*Familienhaus mit großem Potenzial in ruhiger Lage
Zum Verkauf steht ein solides Einfamilienhaus aus dem Jahr 1971 auf
einem großzügigen Grundstück von 875 m² in Walsdorf, einem der
begehrtesten Ortsteile von Idstein im Taunus. Es ist das ehemalige
Zuhause eines Erfinders, der über 100 Patente im Bereich Batterieforschung
anmeldete und bis ins hohe Alter seine Leidenschaft auslebte.
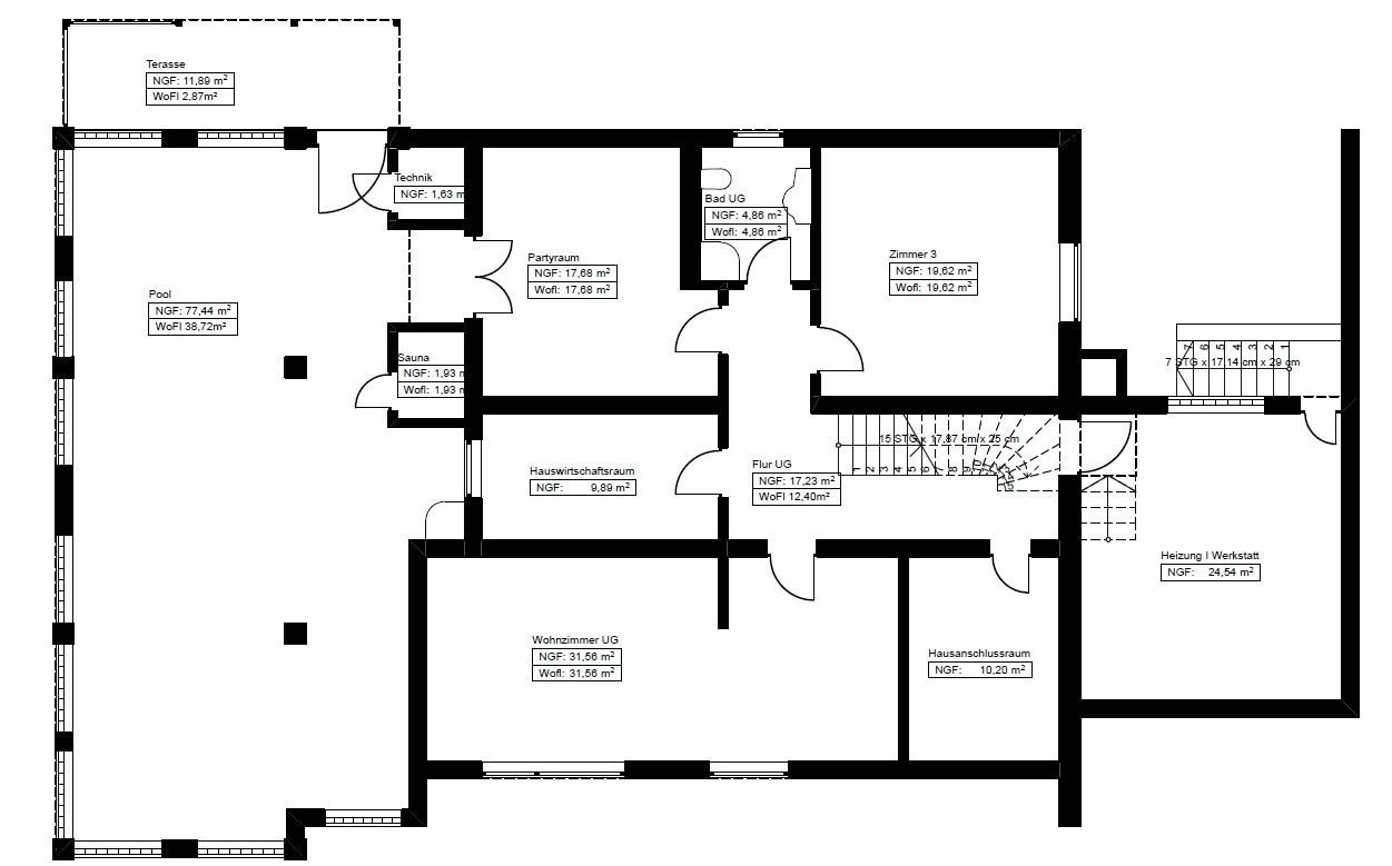
Das Haus bietet eine Das Haus bietet eine Wohnfläche von ca. 247,78 m² (inklusive des
beheizten Poolraums mit 77,44 m², der nur zur Hälfte angerechnet ist).
Die Netto-Grundfläche beträgt 542,59 m² und umfasst zusätzlich Terrasse,
Balkon sowie einen nicht ausgebauten Dachboden mit einer NGF von
148 m² und einer potenziellen Ausbau-Wohnfläche von ca. 93,8 m².
Hier besteht die Möglichkeit, weiteren individuellen Wohnraum zu
schaffen – ideal für eine große Familie oder Homeoffice-Lösungen.
**Besond­ere Highlights:**
- Beheizter Poolraum – ein echtes Extra für Entspannung und
Freizeit das ganze Jahr über
- Geräumige Doppelgarage (24,54 m²)
- Dach mit gedämmter Dachfläche und Doppelverglasung aus ca. 1999/2000
- Gas-Zentralheizung
Das Haus ist innen weitestgehend im Originalzustand und bietet daher
Spielraum für eine moderne Grundsanierung nach eigenen nen Vorstellungen.
Der nicht ausgebaute Dachboden wartet auf die Umsetzung Ihrer Ideen.
**Lage und Umgebung**
Walsdorf liegt ruhig und dennoch zentral im Taunus.
Sie genießen die Vorteile eines gewachsenen Dorfes mit guter
Infrastruktur und sind schnell in Idstein (historische Altstadt mit
Schloss und Fachwerk), Wiesbaden oder Frankfurt
(ca. 40–50 Minuten Fahrzeit). Die Umgebung ist geprägt von ägt von Wald,
Wiesen und Wanderwegen im Naturpark Rhein-Taunus –
perfekt für Naturliebhaber und aktive Familien.
Auch ist in direkter Umgebung ein Golfplatz und ein Reiterhof.
Das Grundstück bietet ausreichend Platz für Garten,
Spielmöglichkeiten und private Rückzugsecken.
Dieses Objekt eignet sich hervorragend für Käufer, die ein solides Massivhaus
mit viel Potenzial suchen und bereit sind, es nach ihren Wünschen zu modernisieren.
Die Kombination aus großem Grundstück, Pool und Ausbaumöglichkeiten im
Dachgeschoss macht es zu einer seltenen Gelegenheit in dieser Lage.

Interessieren Sie sich für dieses Haus?

Objekt-Nr
OM-448395
Objektart
Haus
Objekttyp
Einfamilienhaus
Aktuelle Nutzung
Nicht vermietet
Übernahme ab
sofort

Kaufpreis & Nebenkosten

Kaufpreis
680.000 €
Kaufnebenkosten
ca. 49.386 €
Gesamtkosten
ca. 729.385 €

Aufschlüsselung der Kosten

Kaufpreis 680.000 €
Grunderwerbsteuer 40.800 € (6,00%)
Notarkosten 5.688 € (0,84%)
Grundbucheintrag 2.898 € (0,43%)
Maklerprovision 0€ (0%)

* Kosten für Notar und Grundbuch wurden berechnet basierend auf der Gebührenordnung für Notare. Angenommen wurde die Beurkundung des Kaufs zum angegebenem Kaufpreis sowie eine Grundschuldbestellung i.H.v. 80% des Kaufpreises. Durch Tätigkeiten wie Grundschuldlöschung, Notaranderkonto usw. können weitere Kosten entstehen. Details zu Notar- und Grundbuchkosten

Passt diese Immobilie zu meinem Budget?

Geschätzte Monatsrate: 2.516€

Mehr Genauigkeit in wenigen Sekunden:

Durch die Angabe einiger Basisinformationen wird die geschätzte Monatsrate individuell für Sie berechnet. Für dieses und für alle weiteren Immobilienangebote auf ohne-makler.net

Basierend auf Eigenkapital 20% vom Kaufpreis zzgl. der Kaufnebenkosten / 10 Jahren Sollzinsbindung / 2% anfängliche Tilgung / Effektivzins 3,55%

Einzelheiten

Zustand
renovierungsbedürftig
Anzahl Etagen
2
Nutzfläche
497,9 m²
Badezimmer (Anzahl)
2
Schlafzimmer (Anzahl)
4
Anzahl Garagen
2
Anzahl Stellplätze
4
Bodenbeläge
Parkett, Teppichboden, Fliesen
Heizung
Zentralheizung
Baujahr
1971
Ausstattung
Balkon, Terrasse, Garten, Keller, Vollbad, Sauna, Pool / Schwimmbad, Einbauküche
Infrastruktur
Apotheke, Lebensmittel-Discount, Allgemeinmediziner, Kindergarten, Grundschule, Gesamtschule, Öffentliche Verkehrsmittel

Lage

Lage-Check

Kinderfreundlich
250m
Natur
750m
Gastronomie
250m
Gesundheit
2.7km
Sport
200m
Einkaufen
500m
Kultur
2.4km
Nachtleben
250m
ÖPNV
200m

Energie

Wesentlicher Energieträger
Gas

PDF

Sonstiges

Makleranfragen unerwünscht! Nach § 7 UWG sind unaufgeforderte Kontaktaufnahmen durch Makler ohne ausdrückliche Einwilligung des Empfängers verboten!

Nachricht direkt an den Verkäufer senden

Fragen zu diesem Haus? Interesse zeigen oder einen Besichtigungstermin vereinbaren?

Klicken Sie hier, um dem Anbieter eine Nachricht zu senden:

Angebot von: David Sauer