ohne-makler

Landhaus, vielseitig nutzbar, 380 qm Wohn- und Nutzfläche, für große Familien oder Gruppen

95352 Marktleugast (Neuensorg) – Bayern
237.000 €
5
Zimmer
180 m²
Wohnfläche
920 m²
Grundstücksfläche
Privatangebot
Haus
Landhaus

Dieses großzügige Landhaus liegt am ruhigen Ortsrand eines Ortsteiles von Marktleugast im landschaftlich reizvollen Oberfranken. Es bietet durch seine durchdachte Raumaufteilung und seine Flexibilität optimale Voraussetzungen für das Wohnen und auch Arbeiten unter einem Dach. Die Räume sind weitgehend einzeln und damit getrennt zugänglich über das Treppenhaus. Die Immobilie eignet sich für große Familien, Zusammenschlüsse von Freunden, Patchwork-Konstellationen, für die kombinierte Nutzung als Wohn- und Arbeitsstätte – etwa mit einer Praxis, einem Büro oder Gästeangebot oder vielseitige weitere Zwecke.

Das Gebäude präsentiert sich im charmanten Landhausstil, der regionaltypische Elemente wie Holz, Granitstein und ein Satteldach mit modernen Akzenten kombiniert. Umgeben ist das Anwesen von einem großzügigen Grundstück, das vielfältige Nutzungsmöglichkeiten – vom Familiengarten über die private Ruheoase bis hin zur Selbstversorgung, Tierhaltung oder hobbymäßigen Landwirtschaft – bereithält.
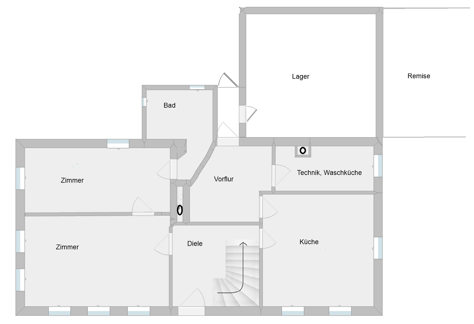
Durch flexible Raumkonzepte und genügend Rückzugsmöglichkeiten bietet das Haus einerseits Privatsphäre, ermöglicht aber zugleich gemeinschaftliches Leben im Alltag. Es stehen helle und freundliche Gemeinschaftsräume, zwei Küchenbereiche sowie zahlreiche Staumöglichkeiten und Nebenräume zur Verfügung. Somit sind auch Lager in verschiedenen Formen im Haus und in den Nebengebäuden z.B. für Handwerk möglich. Zudem lassen sich zwei große Zimmer im 2. OG unter Erweiterung der Heizung leicht in Wohnraum aufwerten.

Die Immobilie überzeugt durch solide Bausubstanz, einen gepflegten Zustand und eine freundliche, helle Atmosphäre.

Interessieren Sie sich für dieses Haus?

Objekt-Nr
OM-397055
Objektart
Haus
Objekttyp
Landhaus
Aktuelle Nutzung
Nicht vermietet
Übernahme ab
Nach Vereinbarung

Kaufpreis & Nebenkosten

Kaufpreis
237.000 €
Kaufnebenkosten
ca. 11.960 €
Gesamtkosten
ca. 248.960 €

Aufschlüsselung der Kosten

Kaufpreis 237.000 €
Grunderwerbsteuer 8.295 € (3,50%)
Notarkosten 2.428 € (1,02%)
Grundbucheintrag 1.238 € (0,52%)
Maklerprovision 0€ (0%)

* Kosten für Notar und Grundbuch wurden berechnet basierend auf der Gebührenordnung für Notare. Angenommen wurde die Beurkundung des Kaufs zum angegebenem Kaufpreis sowie eine Grundschuldbestellung i.H.v. 80% des Kaufpreises. Durch Tätigkeiten wie Grundschuldlöschung, Notaranderkonto usw. können weitere Kosten entstehen. Details zu Notar- und Grundbuchkosten

Passt diese Immobilie zu meinem Budget?

Geschätzte Monatsrate: 931€

Mehr Genauigkeit in wenigen Sekunden:

Durch die Angabe einiger Basisinformationen wird die geschätzte Monatsrate individuell für Sie berechnet. Für dieses und für alle weiteren Immobilienangebote auf ohne-makler.net

Basierend auf Eigenkapital 20% vom Kaufpreis zzgl. der Kaufnebenkosten / 10 Jahren Sollzinsbindung / 2% anfängliche Tilgung / Effektivzins 3,89%

Einzelheiten

Zustand
modernisiert
Anzahl Etagen
3
Nutzfläche
200 m²
Badezimmer (Anzahl)
2
Anzahl Stellplätze
5
Bodenbeläge
Laminat, Teppichboden, Fliesen, Vinyl / PVC
Heizung
Zentralheizung
Baujahr
1948
Ausstattung
Garten, Keller, Duschbad, Barrierefrei
Infrastruktur
Apotheke, Lebensmittel-Discount, Allgemeinmediziner, Kindergarten, Grundschule, Hauptschule, Öffentliche Verkehrsmittel

Angaben zur Ausstattung

Das Landhaus ist mit einer umfangreichen Ausstattung versehen, die Komfort, Funktionalität und Stil miteinander verbindet. Viele klassische Landhauselemente finden sich in der Verwendung von massiven Naturmaterialien wie Granitsteingewände der Fenster und Eingangstür oder von den geschwungenen Holztreppen wieder und schaffen ein behagliches Ambiente.

Zu den Ausstattungsmerkmalen zählen:

• Großzügige Wohnbereiche – lichtdurchflutet
• Mehrere Schlafzimmer, flexibel als Kinder-, Gäste-, Arbeits- oder Hobbyzimmer nutzbar
• 2 Wohnküchen mit jeweils großem Essbereich, im EG mit Vorratsraum
• 2 moderne, stilvoll sanierte Badezimmer; besondere Ausstattungsoptionen: Dusche (im EG barrierefrei), Bidet (EG)
• Kaminofen vorhanden für gemütliche Abende im Winter (über 2. Kamin)
• Großzügiges Treppenhaus mit massiver Holztreppe
• Teilunterkellert: großer Gewölbekeller
• Energieeffiziente Heizung (Gasbrennwertkessel Bj. 2010) – siehe Energieausweis
• Zusätzliche Holzofenheizung leicht wiederherstellbar
• Gemauerter Räucherofen zur Haltbarmachung von Fleisch und Fisch im 2. OG
• Zahlreiche Nebenräume für Stau-und Lagerzwecke: Vorflur, Technikraum/Waschküche, unbeheizte Räume und Kammern in 2. Etage, Lager (ehem. Stall), Remise
• Terrasse mit schöner Aussicht auf das Grundstück/Grünfläche
• Gartenfläche, geeignet für Spiel, Erholung und Freizeit oder gärtnerische Bewirtschaftung
• 5 Stellplätze;
• Barrierearme oder barrierefreie Bereiche, rollstuhlgerechte Gestaltung leicht umsetzbar
• Solide Bausubstanz, moderne Fenster (1994 - 2020, Holz, an zwei Seiten des Hauses außen mit Alu verkleidet)
• Internetanschluss (Telekom: 100 – 250 Mbit/s), Glasfaseranschluss ca. 20 m entfernt verfügbar

Lage

Regionale Einordnung

Der traditionsreiche Markt Marktleugast im Landkreis Kulmbach (Oberfranken, Bayern) ist eingebettet im Naturraum des Frankenwalds. Die landschaftliche Prägung zeichnet sich durch sanfte Höhenzüge, Wälder, Wiesen und eine wohltuende Ruhe aus, die naturnahes Wohnen ermöglicht und zur Entschleunigung einlädt.

Mikrolage (direktes Umfeld)

• Das Grundstück liegt am inneren Ortsrand, aber auch umgeben von weiteren Einfamilienhäusern und landwirtschaftlichen Flächen.
• Ruhige Nachbarschaft, sichere Wohnlage – ideal für Kinder oder ruhesuchende Erwachsene.
• Freistehendes Haus, somit gute Lichtverhältnisse und Garten-Nutzbarkeit.
• Gute Erreichbarkeit der nächsten Ortschaften (Marktleugast Zentrum ca. 2 km).

Infrastruktur & Verkehrsanbindung

• Schnelle (ca. 10-15 Minuten) Zufahrt zur Bundesstraße 289 und Staatsstraße 2158, damit direkte Anbindung Richtung Kulmbach, Hof und Bayreuth, oder zur A9.
• Bushaltestellen mit Verbindung nach Marktleugast, Stadtsteinach und weitere Orte des Frankenwalds direkt vor der Haustür.
• Bäckerei, Lebensmittelmarkt, Metzger, Getränkemarkt, Bankautomat, Apotheke, Ärzte und Seniorenheim in Marktleugast lokal verfügbar.
• Grundschule, Kindergarten, Sportvereine und vielfältige Freizeitmöglichkeiten direkt im oder am Ort; weiterführende Schulen in der Umgebung (u.a. Stadtsteinach/Kulmbach).
Nahe­rholung, Freizeit, Umgebung
• Wander- und Radwege im Frankenwald beginnen direkt vor der Haustür (z.B. Fränkischer Marienweg), zahlreiche Rundwege für Spaziergänge, Jogging oder Mountainbiking.
• Naturbadeseen, Grillplätze, Angelteiche in kurzer Distanz.
• Reitvereine, Ferienhöfe, Familienausflüge (Ponyhof, Erlebnisbauernhöfe) im Ort und Nachbarortschaften.
• Kulturelle Veranstaltungen, Dorffeste und offenes Vereinsleben prägen das soziale Klima.

Lage-Check

Natur
Kinderfreundlich
Gesundheit
Sport
Gastronomie
Einkaufen
Kultur
Nachtleben
ÖPNV

Energie

Energieeffizienzklasse
F
Energieausweistyp
Bedarfsausweis
Wesentlicher Energieträger
Gas
Endenergiebedarf
166,80 kWh/(m²a)

PDF

Sonstiges

• Energieausweis (gültig bis 30.09.2035) liegt vor.
• Grundrissschemata für EG, 1. und 2.OG liegen vor.
• Kein Denkmalschutz
• Verfügbare Fotos zeigen sowohl Außenansichten (mit typischen Landhauselementen und großzügigem Garten) als auch charakteristische Innenbereiche; teilweise sind hier auch Einrichtungsvorschläge (KI) vorhanden.
• Das Haus ist, soweit möglich, geräumt und übernahmebereit.
• Bei Interesse an Holzheizung besteht die Möglichkeit, ein nahegelegenes Waldgrundstück für den eigenen Holzbedarf zu erwerben.
• Besichtigungen: nach Vereinbarung

Nachricht direkt an den Verkäufer senden

Fragen zu diesem Haus? Interesse zeigen oder einen Besichtigungstermin vereinbaren?

Klicken Sie hier, um dem Anbieter eine Nachricht zu senden: