ohne-makler
Exposé drucken

HAUSBESICHTIGUNG 26.04.26 von 14-17 Uhr **neuer Bungalow in Nordseenähe - Energieeffizienzklasse A

21763 Neuenkirchen – Niedersachsen
467.000 €
4
Zimmer
124,13 m²
Wohnfläche
1.028 m²
Grundstücksfläche
Privatangebot
Haus
Bungalow

Dieser lichtdurchflutete Bungalow wurde im Februar 2025 fertiggestellt und bietet auf seinen 124 m² ausreichend Platz auch für ältere Paare bzw. Familien mit Kindern.
Die Diele, in der der Zugang zum Gästebad mit WC/DU/WT ist, wird durch eine Schallschutztür vom Flur getrennt.
Der großzügige Wohn-/Essbereich hat ein großes Fenster mit 2 Flügeln und bietet direkten Zugang zur Terrasse, dem Garten mit Salzwasserpool, zur Garage und der Blockhütte.
Neben der Küche befindet sich der separate Hauswirtschaftsraum mit der Heizungsanlage, Platz für Waschmaschine/Trockner, Regale und für eine große Kühlschrank-/Gefrierschrankkom­bination.
Momentane Zimmernutzung:
Schlafen: Schlafen
Kind II: Gästezimmer
Kind I: Schlafen
Wohnen: Wohn-/Essbereich
D-Bad: Gästebad
Bad: Masterbad
Beide Bäder sind mit bodengleichen Duschen (Linienentwässerung) ausgestattet. Zusätzlich hat das Masterbad ein höhergesetztes Dusch-WC, welches dadurch behindertengerecht ist.
Durch die Trockenboden-Binderkonstruktio­n entstand im Dachboden eine 30m² große Lagerfläche/Ausbaureserve, die bereits mit einem Fußboden belegt ist.

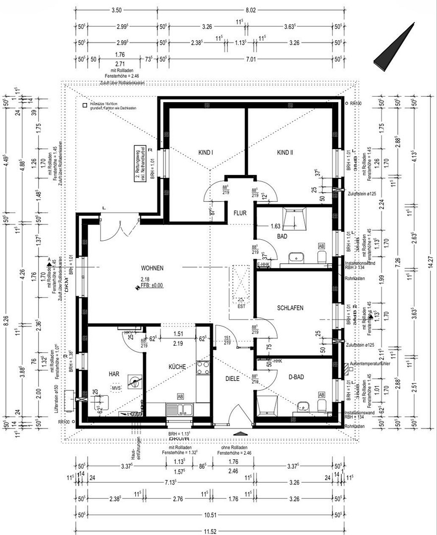
Wohnfläche: 124 m²
Außenmaße: 11,52 m x 14,27 m
Walmdach 35°

Räume im Erdgeschoss
(Wohnflächenangab­en gem. WoFlV)
Wohnzimmer: 32,10 m²
Schlafzimmer: 11,64 m²
Kinderzimmer I: 13,93 m²
Kinderzimmer II: 14,33 m²
Küche: 10,52 m²
Bad: 8,41 m²
D-Bad: 8,01 m²
Diele: 4,95 m²
Flur: 2,19 m²
Hausanschlussraum: 9,08 m²
Überdachte Terrasse: 8,97 m²
Die Bauunterlagen liegen komplett vor.

Interessieren Sie sich für dieses Haus?

Objekt-Nr
OM-447371
Objektart
Haus
Objekttyp
Bungalow
Aktuelle Nutzung
Nicht vermietet
Übernahme ab
Nach Vereinbarung

Kaufpreis & Nebenkosten

Kaufpreis
467.000 €
Kaufnebenkosten
ca. 29.447 €
Gesamtkosten
ca. 496.446 €

Aufschlüsselung der Kosten

Kaufpreis 467.000 €
Grunderwerbsteuer 23.350 € (5,00%)
Notarkosten 4.034 € (0,86%)
Grundbucheintrag 2.063 € (0,44%)
Maklerprovision 0€ (0%)

* Kosten für Notar und Grundbuch wurden berechnet basierend auf der Gebührenordnung für Notare. Angenommen wurde die Beurkundung des Kaufs zum angegebenem Kaufpreis sowie eine Grundschuldbestellung i.H.v. 80% des Kaufpreises. Durch Tätigkeiten wie Grundschuldlöschung, Notaranderkonto usw. können weitere Kosten entstehen. Details zu Notar- und Grundbuchkosten

Passt diese Immobilie zu meinem Budget?

Geschätzte Monatsrate: 1.747€

Mehr Genauigkeit in wenigen Sekunden:

Durch die Angabe einiger Basisinformationen wird die geschätzte Monatsrate individuell für Sie berechnet. Für dieses und für alle weiteren Immobilienangebote auf ohne-makler.net

Basierend auf Eigenkapital 20% vom Kaufpreis zzgl. der Kaufnebenkosten / 10 Jahren Sollzinsbindung / 2% anfängliche Tilgung / Effektivzins 3,61%

Einzelheiten

Zustand
Neuwertig
Anzahl Etagen
1
Nutzfläche
39 m²
Badezimmer (Anzahl)
2
Schlafzimmer (Anzahl)
2
Anzahl Garagen
1
Anzahl Stellplätze
2
Bodenbeläge
Teppichboden, Vinyl / PVC
Heizung
Fußbodenheizung
Baujahr
2025
Ausstattung
Terrasse, Garten, Duschbad, Pool / Schwimmbad, Gäste-WC, Barrierefrei
Infrastruktur
Apotheke, Lebensmittel-Discount, Allgemeinmediziner, Kindergarten, Grundschule, Realschule, Öffentliche Verkehrsmittel

Angaben zur Ausstattung

Das Haus ist mit einem Verblendmauerwerk versehen.
An allen Fenstern sind motorenbetriebene Rolläden, die Raumhöhen betragen im gesamten Gebäude 2,72 m. Zur individuellen Regelung der Raumtemperatur verfügt jeder abgeschlossene Wohnraum über ein eigenes Thermostat.
Bäder, Küche und HWR sind mit einer Lüftungsanlage ausgestattet.
Die beiden Bäder sind im Boden komplett, sowie umlaufend 1,20 m und im Duschbereich 2,10 m gefliest sowie mit Duscharmaturen von Grohe (Thermostate) ausgestattet.
Zwei der Zimmer ( Schlafen/Kind 2) sind mit hochwertigem Kugelgarn-Teppichboden und die anderen Räume mit Vinyl ausgelegt.
Deckenspots in den Bädern, Flur, Wohn- und Essbereich.
In allen Zimmern ist neben der Dreifachsteckdose ein Datenleitungsanschluss vorhanden.
Auf dem Dach befinden sich neben der Satellitenschüssel 4 Solarplatten mit 2 kWp Gesamtleistung und auf dem Dachboden ein Speicher mit einer Speicherkapazität von 2,24 kWh. Der Zugang zum Dachboden befindet sich in der Diele, nicht im Bereich des Flures. Durch zusätzliche Fenster hat der Dachboden Tageslicht.
Der Internetanschluss ist über die am Haus montierte 5G-Antenne gegeben.
Eine Betonfertiggarage von 3 x 6 m mit einem motorbetriebenem Schwingtor und zwei weitere Stellplätze sind vorhanden.
Die Blockbohlenhütte (45 mm) mit 3 x 3 m geschlossen und 3 x 3 m Vorderseitig offen befindet sich im hinteren Gartenbereich.
Der einen Meter eingelassene mit Salzwasser gefüllte Achtformpool 7,25 x 4,60 x 1,50 m mit Sandfilteranlage, sowie einer Salzelektrolyseanlage wird durch ein stabiles 8 x 5 m großes Zelt von der Firma „Stabile Zelte“ gegen Witterungseinflüsse geschützt.

Lage

Neuenkirchen ist eine Gemeinde in Niedersachsen mit 7 Ortsteilen und gehört zur Samtgemeinde Land Hadeln im Landkreis Cuxhaven und liegt in der Nähe von Otterndorf, einer Küstenstadt mit guter Infrastruktur und maritimem Flair inmitten der malerischen Landschaft der Norddeutschen Tiefebene.
Der Ort überzeugt durch die Nähe zur Nordsee und bietet eine charmante ländliche Atmosphäre mit gewachsener Dorfinfrastruktur und ist ein idealer Ausgangspunkt für Erholungssuchende und Naturfreunde.
Trotz des ländlichen Charakters sind größere Städte - Cuxhaven, Bremerhaven, Stade …- durch die verkehrsgünstige Lage mit Anbindung an die B73 und die A27 gut erreichbar und macht die Gemeinde zusätzlich reizvoll, was den Wohnort besonders attraktiv macht.

Die Immobilie liegt im Innenbereich des Hauptortes von Neuenkirchen am Rande eines abgeschlossenen Neubaugebietes auf 1028 m².
Einkaufsmöglichkeiten für den täglichen Bedarf hat man fußläufig im „Dein Dorfladen“.
Arzt, Zahnarzt, Gaststätte, Fleischer, Friseur und das Dorfgemeinschaftshaus erreichen Sie in nur 400 Metern, die Kindertagesstätte liegt 900 Meter entfernt.
Die nächste Bushaltestelle liegt ebenfalls 400 Meter entfernt und bietet Anschluss an das öffentliche Verkehrsnetz, unter anderem in Richtung Otterndorf und Cuxhaven.

Lage-Check

Natur
Kinderfreundlich
Gesundheit
Sport
Einkaufen
Gastronomie
Kultur
Nachtleben
ÖPNV

Energie

0 25 50 75 100 125 150 175 200 225 ≥250
Energieeffizienzklasse
A
Energieausweistyp
Bedarfsausweis
Wesentlicher Energieträger
Luft-/Wasserwärme
Endenergiebedarf
36,00 kWh/(m²a)

Sonstiges

Die Einbauküche von der Firma NOBILIA kann zusammen mit der Gefrierschrank/Kühlschrankkomb­ination für 15.000 € erworben werden.
Weitere Bilder vom Inneren des Haues gerne nach Rücksprache erhältlich.

Makleranfragen unerwünscht! Nach § 7 UWG sind unaufgeforderte Kontaktaufnahmen durch Makler ohne ausdrückliche Einwilligung des Empfängers verboten!

Nachricht direkt an den Verkäufer senden

Fragen zu diesem Haus? Interesse zeigen oder einen Besichtigungstermin vereinbaren?

Klicken Sie hier, um dem Anbieter eine Nachricht zu senden: