ohne-makler

Ein Eigenheim sichert die Rente , NEU attraktive KfW-Förderung

38458 Velpke – Niedersachsen
299.900 €
6
Zimmer
130 m²
Wohnfläche
518 m²
Grundstücksfläche
Haus
Einfamilienhaus

Dieses gepflegte Einfamilienhaus aus dem Jahr 1980 überzeugt durch eine solide Bauweise, einen durchdachten Grundriss sowie vielseitige Nutzungsmöglichkeiten. Besonders hervorzuheben ist das vorhandene Ausbau- und Modernisierungspotenzial, das Raum für individuelle Wohnkonzepte bietet.

Highlights im Überblick:

•ca. 84 m² Wohnfläche im Erdgeschoss
•ca. 17 m² Wintergarten
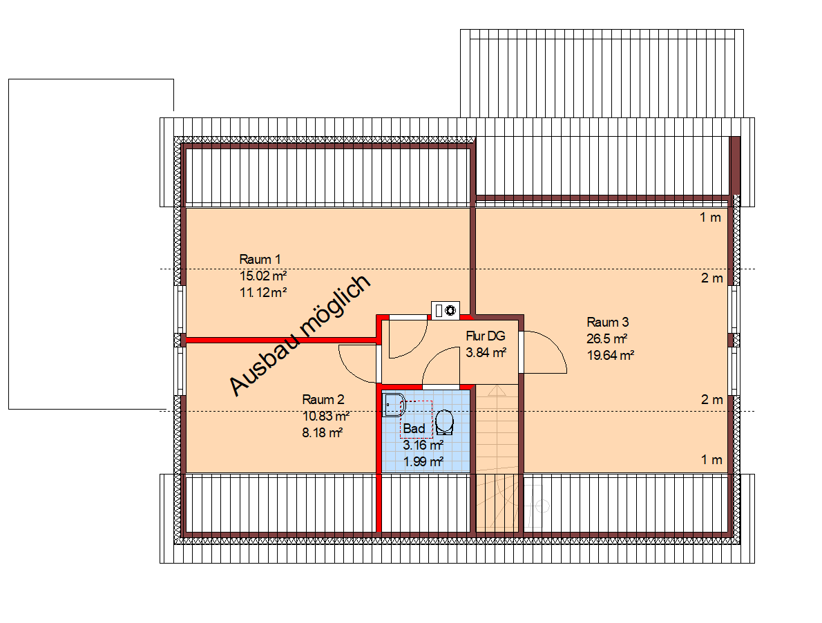
•ca. 59 m² Wohn-/Nutzfläche im Dachgeschoss (Individueller Grundriss möglich)
•ca. 75 m² Nutzfläche im Vollkeller mit Partyraum, WC und Hauswirtschaftsbereich
•Grundstück ca. 513 m² mit Südausrichtung
•Heller Wohn- und Essbereich mit Kamin
•Neue Einbauküche (2025) inkl. neuer Fliesen
•Badezimmer mit Dusche & Badewanne (modernisiert)
•2 Schlafzimmer im Erdgeschoss
•3-fach verglaste Fenster mit Rollläden (2024/2025)
•Gasheizung (2014)
•Garage mit direktem Zugang zum Garten + zusätzlicher Stauraum
•Solide Bauweise (massiver Keller, Holzrahmenkonstruktion mit Klinkerfassade)
Kamin für Gemütlichkeit und Wärme
•Glasfaseranschluss möglich

Besonderheit:
Als Projektentwickler bieten wir Ihnen auf Wunsch ein individuelles Sanierungs- und Modernisierungskonzept inkl. Förderberatung (z. B. über die KfW-Bank), sodass Sie Ihr zukünftiges Zuhause gezielt planen und optimal finanzieren können.

Interessieren Sie sich für dieses Haus?

Objekt-Nr
OM-444835
Objektart
Haus
Objekttyp
Einfamilienhaus
Aktuelle Nutzung
Nicht vermietet
Übernahme ab
Nach Vereinbarung

Kaufpreis & Nebenkosten

Kaufpreis
299.900 €
Kaufnebenkosten
ca. 19.386 €
Gesamtkosten
ca. 319.286 €

Aufschlüsselung der Kosten

Kaufpreis 299.900 €
Grunderwerbsteuer 14.995 € (5,00%)
Notarkosten 2.904 € (0,97%)
Grundbucheintrag 1.488 € (0,50%)
Maklerprovision 0€ (0%)

* Kosten für Notar und Grundbuch wurden berechnet basierend auf der Gebührenordnung für Notare. Angenommen wurde die Beurkundung des Kaufs zum angegebenem Kaufpreis sowie eine Grundschuldbestellung i.H.v. 80% des Kaufpreises. Durch Tätigkeiten wie Grundschuldlöschung, Notaranderkonto usw. können weitere Kosten entstehen. Details zu Notar- und Grundbuchkosten

Passt diese Immobilie zu meinem Budget?

Geschätzte Monatsrate: 1.184€

Mehr Genauigkeit in wenigen Sekunden:

Durch die Angabe einiger Basisinformationen wird die geschätzte Monatsrate individuell für Sie berechnet. Für dieses und für alle weiteren Immobilienangebote auf ohne-makler.net

Basierend auf Eigenkapital 20% vom Kaufpreis zzgl. der Kaufnebenkosten / 10 Jahren Sollzinsbindung / 2% anfängliche Tilgung / Effektivzins 3,92%

Einzelheiten

Zustand
gepflegt
Anzahl Etagen
2
Nutzfläche
75 m²
Badezimmer (Anzahl)
2
Schlafzimmer (Anzahl)
3
Anzahl Garagen
1
Anzahl Stellplätze
1
Bodenbeläge
Laminat, Teppichboden, Fliesen, Vinyl / PVC
Heizung
Zentralheizung
Baujahr
1980
Ausstattung
Terrasse, Wintergarten, Garten, Keller, Vollbad, Duschbad, Einbauküche, Gäste-WC, Kamin
Infrastruktur
Apotheke, Lebensmittel-Discount, Allgemeinmediziner, Kindergarten, Öffentliche Verkehrsmittel

Angaben zur Ausstattung

Die Immobilie überzeugt durch eine gelungene Kombination aus solider Substanz und bereits durchgeführten Modernisierungen, die ein komfortables Wohnen ermöglichen und gleichzeitig Raum für individuelle Gestaltung lassen.

•Hochwertige, neue Einbauküche (2025) mit modernen Fliesen
•Stilvolles Badezimmer mit Dusche & Badewanne (modernisiert, WC neu 2024)
•Großzügiger Wintergarten als lichtdurchflutete Erweiterung des Wohnbereichs
•Wohn- und Essbereich mit Kaminanschluss für eine behagliche Atmosphäre
•Energetisch optimierte 3-fach verglaste Fenster mit Rollläden (2024/2025)
•Zeitgemäße Bodenbeläge: neue Fliesen, Klick-Vinyl (2023), Laminat und Teppich
•Vollkeller mit vielseitig nutzbaren Räumen, inkl. Partyraum und separatem WC
•Effiziente Gasheizung (2014)
•Fußbodenheizung
•Ausgebaut­er Spitzboden mit zusätzlichem Entwicklungspotenzial für weitere Wohnräume
•Garage mit direktem Zugang zum Garten sowie praktische Nebenflächen für Geräte & Fahrräder
•Sonniges Grundstück mit Südausrichtung und eigenem Brunnen zur Bewässerung
•Wertige Bauweise mit massivem Keller und Klinkerfassade
•Zukunftssicher durch mögliche Glasfaseranbindung

Besonderer Mehrwert:
Auf Wunsch entwickeln wir für Sie ein individuelles Sanierungskonzept – abgestimmt auf Ihre Vorstellungen und inklusive Beratung zu attraktiven Fördermöglichkeiten.

Beispi­elförderung unverbindlich:
KfW-Programm 308 - Wohneigentum für Familien für Bestanderwerb
Kredithöhe max. bis 150.000 €
0,76 % Zinsen
Tilgungsnachlässe möglich

Lage

Velpke überzeugt als attraktiver Wohnstandort im direkten Einzugsgebiet von Wolfsburg (ca. 15 Minuten). Die Gemeinde bietet eine sehr gute Infrastruktur mit Einkaufsmöglichkeiten, Schulen, Kindertagesstätten sowie einer soliden Verkehrsanbindung über die B 244 und den öffentlichen Nahverkehr.

Besonders hervorzuheben ist der hohe Freizeitwert: Die „Velpker Schweiz“ mit Seen, Wander- und Radwegen liegt praktisch vor der Tür und lädt zur Erholung im Grünen ein.

Gleichzeitig profitiert der Standort von einer wachsenden Glasfaserinfrastruktur und entwickelt sich zunehmend zu einem gefragten Wohnort im Wolfsburger Speckgürtel – ideal für alle, die ruhiges Wohnen mit stadtnaher Anbindung verbinden möchten.

Lage-Check

Natur
Kinderfreundlich
Gesundheit
Einkaufen
Gastronomie
Sport
Kultur
Nachtleben
ÖPNV

Energie

Endenergieverbrauch
169,00 kWh/(m²a)
Energieeffizienzklasse
F
Energieausweistyp
Verbrauchsausweis
Wesentlicher Energieträger
Gas

Sonstiges

Als Projektentwickler begleiten wir Sie auf Wunsch von der ersten Idee bis zur Umsetzung und erstellen gemeinsam mit Ihnen ein individuelles Sanierungs- und Modernisierungskonzept – inklusive Beratung zu attraktiven Fördermöglichkeiten (z. B. KfW) und einer soliden Finanzierungsgrundlage. So erhalten Sie von Anfang an maximale Transparenz und Planungssicherheit für Ihr zukünftiges Zuhause.

Alle Angaben zur Immobilie beruhen auf den Informationen des Eigentümers. Irrtum und Zwischenverkauf vorbehalten.

Vermittlungsge­bühr für Käufer: 3,57% vom Verkaufspreis

Makleranfragen unerwünscht! Nach § 7 UWG sind unaufgeforderte Kontaktaufnahmen durch Makler ohne ausdrückliche Einwilligung des Empfängers verboten!

Nachricht direkt an den Verkäufer senden

Fragen zu diesem Haus? Interesse zeigen oder einen Besichtigungstermin vereinbaren?

Klicken Sie hier, um dem Anbieter eine Nachricht zu senden:

Courtage: Keine Provision für Käufer

Angebot von: Sekura Bau UG - Herbert Flegel