ohne-makler
Exposé drucken

- provisionsfrei - Gemütliches Einfamilienhaus mit großem Garten

Horst 11, 25779 Hennstedt (Horst) – Schleswig-Holstein
398.000 €
7
Zimmer
222 m²
Wohnfläche
1.399 m²
Grundstücksfläche
Privatangebot
Haus
Einfamilienhaus

Wir bieten unser großzügiges und gepflegtes Einfamilienhaus mit viel Platz innen wie außen, in einer einzigartigen Naturlage mit guten Parkmöglichkeiten und Glasfaser provisionsfrei zum Kauf an.

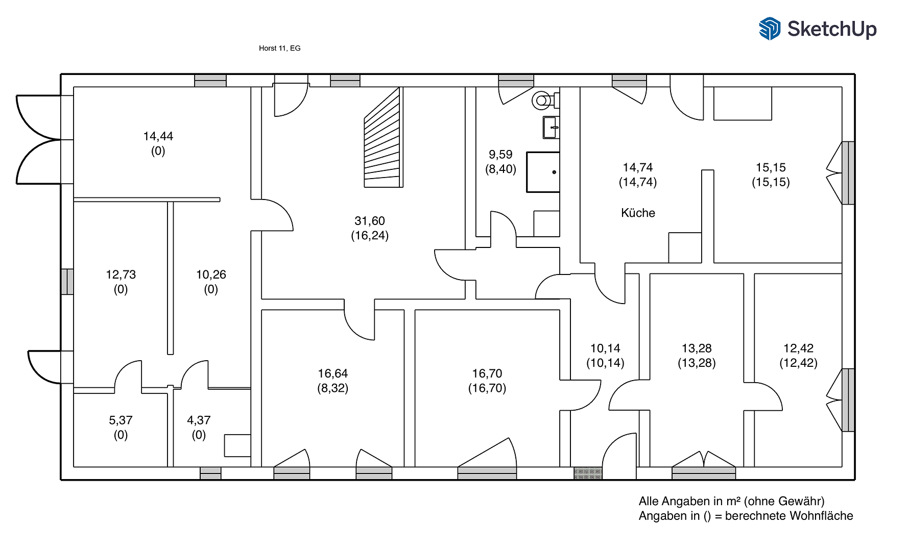
Sie brauchen Platz, mit oder ohne Kinder? Dann ist diese Immobilie genau richtig für Sie. Sie betreten das Haus über die Nordseite in eine große Diele mit Garderobe und Klönschnack-Sitzecke. Angrenzend befinden sich der Hauswirtschaftsraum (den wir nicht in die Anzahl der Zimmer mit aufgenommen haben), der viel Platz für Ihre Vorräte und Kühlgeräte bietet, Ihre Garage und der abteilbare Wohnbereich des Erdgeschosses. Außerdem gelangen Sie von hier aus über eine Holztreppe in das Obergeschoß. Neben der Garage finden Sie eine kleine Haus- und Gartenwerkstatt und nochmals Lagermöglichkeiten sowie den Heizungsraum.

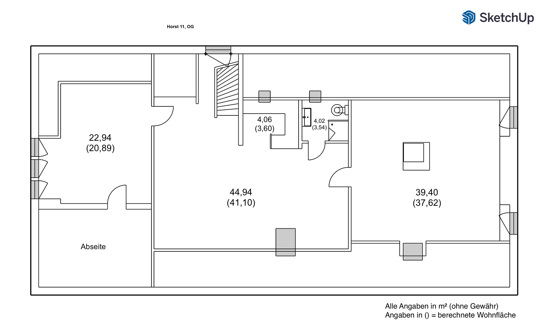
In das Obergeschoß kommend, betreten Sie ein ca. 40 m² großes Studio, welches Ihr neues Wohnzimmer sein könnte. Vom Studio ausgehend erreichen Sie das Zimmer Eiderblick zur Ostseite und ein weiteres Zimmer zur Westseite, welches sich als Schlafzimmer anbietet. Außerdem befinden sich ein kleines Duschbad und eine kleine offene Küche im OG. Das Dach mit Spitzboden wurde 2004 saniert und vollständig gedämmt.

Im Erdgeschoß Süd-Ost-Lage befinden sich die Küche mit neuer EBK inkl. moderner Einbaugeräte nebst Esszimmer. Über den Südflur erreichen Sie das Duschbad mit Waschmaschine und Trockner sowie 3 weitere Zimmer, die zuletzt als Gästezimmer und Büro genutzt wurden. Das Erdgeschoss hat einen separaten Hauseingang von der Südseite, der auch zur Terrasse, dem Pavillon und dem großen Garten führt.

Das Objekt bietet auch besondere Nutzungsmöglichkeiten, z. B. für das Bewohnen in Mehrgenerationen oder auch zur teilweisen Nutzung oder Vermietung als Ferienwohnung oder Einliegerwohnung.

Über die Jahre wurden immer wieder Modernisierungen (Fenster, Fußböden, Heizung, Bad u. a.) durchgeführt. Überwiegend sind die Zimmer mit Natur-Holzdielen oder Laminat versehen, die Flure im EG sind gefliest.

Heiz- und Nebenkosten
=================­
Nebenkosten p.m.: ~ 185 €
Heizkosten p.m.: ~ 225 €
Anm.: In den Nebenkosten sind Grundsteuer, Gebäudeversicherung, Wasser, Eider-Treene-Verband, Abfall, Schornsteinfeger und Heizungswartung einbezogen. Die Kalkulation der Heizkosten basiert auf einer dreijährigen "rund um die Uhr"-Beheizung für die Jahre 2023-2025 und stellt sich deutlich freundlicher dar, als der gesetzlich berechnete Energiebedarfsausweis vom 05.09.2021. Sie übernehmen hier ein Haus mit ehrlicher Substanz, überschaubaren Verbrauchskosten und vollem 4000L-Öltank.

Dank Highspeed-Internet verbinden Sie Beruf und Freizeit hier mit einer einzigartigen Lebensumgebung.

Kontaktaufnahme
=========­===
Bei Interesse teilen Sie uns bitte neben Ihren Fragen und Wünschen auch Ihren vollständigen Namen, Anschrift sowie Ihre E-Mail-Adresse oder Telefonnummer per Kontaktformular mit. Anonyme Anfragen können wir leider nicht berücksichtigen. Von Besichtigungen auf eigene Faust ohne vorherige Anmeldung bitten wir aus Rücksicht auf die Bewohner abzusehen.

Interessieren Sie sich für dieses Haus?

Objekt-Nr
OM-434901
Objektart
Haus
Objekttyp
Einfamilienhaus
Aktuelle Nutzung
Nicht vermietet
Übernahme ab
sofort

Kaufpreis & Nebenkosten

Kaufpreis
398.000 €
Kaufnebenkosten
ca. 31.241 €
Gesamtkosten
ca. 429.240 €

Aufschlüsselung der Kosten

Kaufpreis 398.000 €
Grunderwerbsteuer 25.870 € (6,50%)
Notarkosten 3.558 € (0,89%)
Grundbucheintrag 1.813 € (0,46%)
Maklerprovision 0€ (0%)

* Kosten für Notar und Grundbuch wurden berechnet basierend auf der Gebührenordnung für Notare. Angenommen wurde die Beurkundung des Kaufs zum angegebenem Kaufpreis sowie eine Grundschuldbestellung i.H.v. 80% des Kaufpreises. Durch Tätigkeiten wie Grundschuldlöschung, Notaranderkonto usw. können weitere Kosten entstehen. Details zu Notar- und Grundbuchkosten

Passt diese Immobilie zu meinem Budget?

Geschätzte Monatsrate: 1.510€

Mehr Genauigkeit in wenigen Sekunden:

Durch die Angabe einiger Basisinformationen wird die geschätzte Monatsrate individuell für Sie berechnet. Für dieses und für alle weiteren Immobilienangebote auf ohne-makler.net

Basierend auf Eigenkapital 20% vom Kaufpreis zzgl. der Kaufnebenkosten / 10 Jahren Sollzinsbindung / 2% anfängliche Tilgung / Effektivzins 3,69%

Einzelheiten

Zustand
gepflegt
Anzahl Etagen
2
Nutzfläche
47 m²
Badezimmer (Anzahl)
2
Schlafzimmer (Anzahl)
5
Anzahl Garagen
1
Anzahl Carports
2
Anzahl Stellplätze
3
Bodenbeläge
Laminat, Fliesen, Vinyl / PVC, Sonstiges (s. Text)
Heizung
Zentralheizung
Baujahr
1900
Ausstattung
Terrasse, Wintergarten, Garten, Duschbad, Einbauküche
Infrastruktur
Apotheke, Lebensmittel-Discount, Allgemeinmediziner, Kindergarten, Grundschule, Gesamtschule, Öffentliche Verkehrsmittel

Angaben zur Ausstattung

- Glasfaseranschluss
- moderne Einbauküche aus 2022
- Doppelcarport (~2,30m Höhe)
- Einzelgarage
- 3 Stellplätze vor der Garage
- Grundstück ist voll erschlossen
- Heizungsanlage und Heizkörper 2023 erneuert, Brennwertkessel Buderus Logano plus KB195i mit App-Steuerung
- Pavillon im Garten für Regentage

Lage

Der Ortsteil Horst liegt an der Eider im begehrten sogenannten Omega-Herz von Dithmarschen, er besteht lediglich aus ca. 2 Dutzend Häusern, hier klönt man auf der Dorfstraße. Kinder genießen die frische Luft und Freiheit, ein Schulbus bringt sie sicher nach Hennstedt und zurück. Das weitere Umland ist neben der Eider landwirtschaftlich von schier unendlichen Weiden und Feldern geprägt.

Einkaufsmöglichkei­ten (Supermarkt und Discounter), eine Tankstelle, Post, Packstation oder Allgemeinmediziner sowie eine Apotheke finden Sie ebenfalls im 4km entfernten Hennstedt. Die Gemeinde bietet für ältere Anwohner gegen einen geringen Obolus Shuttle Service für Arztbesuche oder Einkäufe.

Sie suchen einen Liegeplatz für Ihr (zukünftiges) Boot? Im Ortsteil und im Nachbarort befinden sich Liegeplätze an den Marinas der Eider.

Starten Sie Ihre Ausflüge in Dithmarschen direkt ab der Haustür als ausführliche Spaziergänge oder mit dem Rad bis zur Nordsee. Mit dem Auto sind Sie in 20 Minuten am Eidersperrwerk oder in Friedrichstadt ("Klein-Amsterdam") bzw. in 45 Minuten in Sankt Peter-Ording.

Lage-Check

Natur
3.2km
Kinderfreundlich
3.8km
Gesundheit
3.8km
Sport
4.0km
Einkaufen
100m
Gastronomie
4.2km
Nachtleben
4.2km
Kultur
4.6km
ÖPNV
100m

Energie

Energieeffizienzklasse
F
Energieausweistyp
Bedarfsausweis
Wesentlicher Energieträger
Öl
Endenergiebedarf
184,00 kWh/(m²a)

Sonstiges

Makleranfragen unerwünscht! Nach § 7 UWG sind unaufgeforderte Kontaktaufnahmen durch Makler ohne ausdrückliche Einwilligung des Empfängers verboten!

Nachricht direkt an den Verkäufer senden

Fragen zu diesem Haus? Interesse zeigen oder einen Besichtigungstermin vereinbaren?

Klicken Sie hier, um dem Anbieter eine Nachricht zu senden:

Angebot von: Herr Schmidt