ohne-makler
Exposé drucken
5
Zimmer
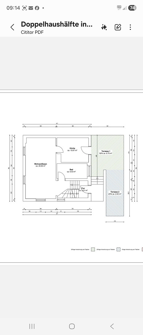
120 m²
Wohnfläche
365 m²
Grundstücksfläche
Privatangebot
Haus
Doppelhaushälfte

Das Haus wurde komplett saniert: Entwässerung, Fundamentverstärkung, Fassade, Dach, Sanitäranlagen und Wasserableitung wurden erneuert. Im letzten Jahr wurden Erdgeschoss und Obergeschoss komplett renoviert (neues Badezimmer, neue Küche, Wohnzimmer, Fußbodenheizung), neue dreifach verglaste Fenster mit elektrischen Rollläden und Fernbedienung. Das Haus ist eine Besichtigung wert.

Interessieren Sie sich für dieses Haus?

Objekt-Nr
OM-434076
Objektart
Haus
Objekttyp
Doppelhaushälfte
Aktuelle Nutzung
Nicht vermietet
Übernahme ab
Nach Vereinbarung

Kaufpreis & Nebenkosten

Kaufpreis
485.000 €
Kaufnebenkosten
ca. 30.710 €
Gesamtkosten
ca. 515.709 €

Aufschlüsselung der Kosten

Kaufpreis 485.000 €
Grunderwerbsteuer 24.250 € (5,00%)
Notarkosten 4.272 € (0,88%)
Grundbucheintrag 2.188 € (0,45%)
Maklerprovision 0€ (0%)

* Kosten für Notar und Grundbuch wurden berechnet basierend auf der Gebührenordnung für Notare. Angenommen wurde die Beurkundung des Kaufs zum angegebenem Kaufpreis sowie eine Grundschuldbestellung i.H.v. 80% des Kaufpreises. Durch Tätigkeiten wie Grundschuldlöschung, Notaranderkonto usw. können weitere Kosten entstehen. Details zu Notar- und Grundbuchkosten

Passt diese Immobilie zu meinem Budget?

Geschätzte Monatsrate: 1.833€

Mehr Genauigkeit in wenigen Sekunden:

Durch die Angabe einiger Basisinformationen wird die geschätzte Monatsrate individuell für Sie berechnet. Für dieses und für alle weiteren Immobilienangebote auf ohne-makler.net

Basierend auf Eigenkapital 20% vom Kaufpreis zzgl. der Kaufnebenkosten / 10 Jahren Sollzinsbindung / 2% anfängliche Tilgung / Effektivzins 3,67%

Einzelheiten

Zustand
saniert
Anzahl Etagen
2
Nutzfläche
140 m²
Badezimmer (Anzahl)
2
Schlafzimmer (Anzahl)
4
Anzahl Stellplätze
2
Bodenbeläge
Laminat, Fliesen, Vinyl / PVC
Heizung
Fußbodenheizung
Baujahr
1950
Ausstattung
Terrasse, Garten, Keller, Vollbad, Duschbad, Einbauküche, Gäste-WC, Barrierefrei
Infrastruktur
Apotheke, Lebensmittel-Discount, Allgemeinmediziner, Kindergarten, Grundschule, Öffentliche Verkehrsmittel

Lage

Lage-Check

Natur
800m
Kinderfreundlich
250m
Sport
1.1km
Gesundheit
200m
Einkaufen
150m
Gastronomie
900m
Kultur
250m
Nachtleben
1.1km
ÖPNV
150m

Energie

0 25 50 75 100 125 150 175 200 225 ≥250
Endenergieverbrauch
75,08 kWh/(m²a)
Energieeffizienzklasse
B
Energieausweistyp
Verbrauchsausweis
Wesentlicher Energieträger
Holzpellets

Sonstiges

Makleranfragen unerwünscht! Nach § 7 UWG sind unaufgeforderte Kontaktaufnahmen durch Makler ohne ausdrückliche Einwilligung des Empfängers verboten!

Nachricht direkt an den Verkäufer senden

Fragen zu diesem Haus? Interesse zeigen oder einen Besichtigungstermin vereinbaren?

Klicken Sie hier, um dem Anbieter eine Nachricht zu senden:

Angebot von: Alexandru Hornet