ohne-makler
Exposé drucken
This listing has been automatically translated.
5
Room
120 m²
Living Area
365 m²
Plot Area
Private offer
House
Semi-detached house

The house has been completely renovated: the drainage system, foundation, facade, roof, plumbing, and water drainage have all been renewed. Last year, the ground floor and upper floor were completely renovated (new bathroom, new kitchen, living room, underfloor heating), and new triple-glazed windows with electric blinds and remote control were installed. This house is definitely worth a viewing.

Are you interested in this house?

Object Number
OM-434076
Object Class
House
Object Type
Semi-detached house
Is occupied
Vacant
Handover from
By arrangement

Purchase price & additional costs

purchase price
485.000 €
Purchase additional costs
approx. 30,710 €
Total costs
approx. 515,709 €

Breakdown of Costs

Purchase price 485.000 €
Real estate transfer tax 24,250 € (5.00%)
Notary costs 4,272 € (0.88%)
Land register entry 2,188 € (0.45%)
Broker commission 0€ (0%)

* Costs for notary and land register were calculated based on the fee schedule for notaries. Assumed was the notarization of the purchase at the stated purchase price and a land charge in the amount of 80% of the purchase price. Further costs may be incurred due to activities such as land charge cancellation, notary escrow account, etc. Details of notary and land registry costs

Does this property fit my budget?

Estimated monthly rate: 1,833€

More accuracy in a few seconds:

By providing some basic information, the estimated monthly rate is calculated individually for you. For this and for all other real estate offers on ohne-makler.net

Based on equity 20% of the purchase price plus the purchase incidental costs / 10 years fixed interest rate / 2% initial repayment / Effective interest rate 3.67%

Details

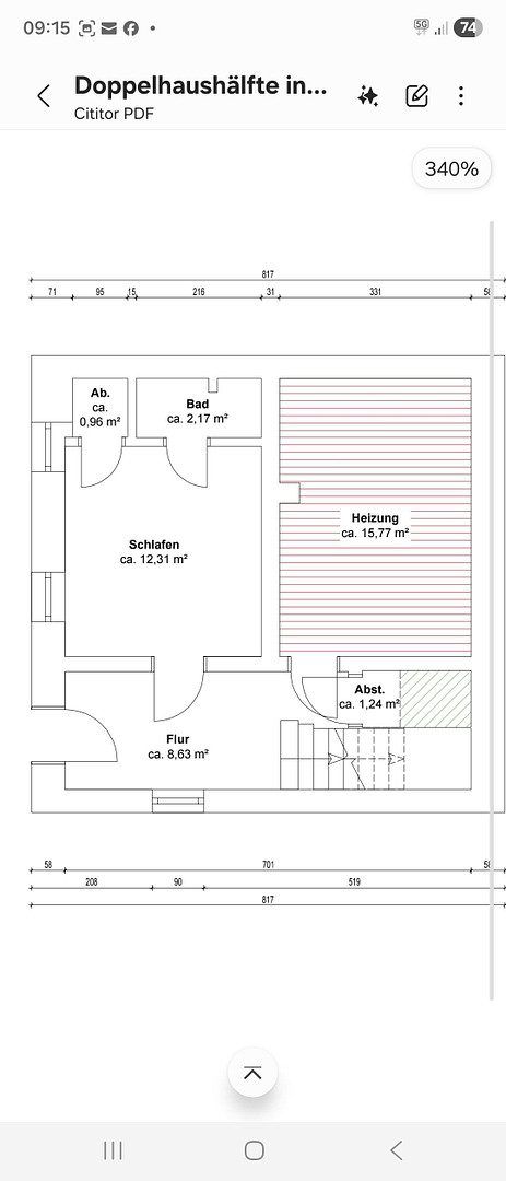
Condition
Rehabilitated
Number of floors
2
Usable area
140 m²
Bathrooms (number)
2
Bedrooms (number)
4
Number of parking lots
2
Flooring
Laminate, Tiles, Vinyl / PVC
Heating
Underfloor heating
Year of construction
1950
Equipment
Terrace, Garden, Basement, Full bath, Shower bath, Fitted kitchen, Guest toilet, Barrier-free
Infrastructure
Pharmacy, Grocery discount, General practitioner, Kindergarten, Primary school, Public transport

Location

Location Check

Nature
800m
Child Friendliness
250m
Sports
1.1km
Health
200m
Shopping
150m
Eating Out
900m
Culture
250m
Nightlife
1.1km
Public Transport
150m

Energy

0 25 50 75 100 125 150 175 200 225 ≥250
Final energy consumption
75.08 kWh/(m²a)
Energy efficiency class
B
Energy certificate type
Consumption certificate
Main energy source
Wood pellets

Miscellaneous

Broker inquiries not welcome! According to § 7 UWG, unsolicited contact by brokers without the express consent of the recipient is prohibited!

Send a message directly to the seller

Questions about this house? Show interest or arrange a viewing appointment?

Click here to send a message to the provider:

Offer from: Alexandru Hornet