ohne-makler
Exposé drucken

Großes Einfamilienhaus mit wunderschöne Aussichten auf den Steigerwald

91480 Markt Taschendorf – Bayern
498.000 €
7
Zimmer
293 m²
Wohnfläche
1.039 m²
Grundstücksfläche
Privatangebot
Haus
Einfamilienhaus

Das Haus hat eine sonnige Ausrichtung nach Süden. Die geräumigen Zimmer mit großen Fenstern bieten viel Licht und einen schönen Blick auf das Tal. Besonders der Ausblick durch das Panoramafenster im Esszimmer ist ein Genuss. Jede Etage verfügt über ein Schlafzimmer und ein Badezimmer. Die angeschlossene Einzelgarage ist 34 m² groß und verfügt über große Fenster, einen Arbeitsbereich und Zugang zum Wohnbereich im Erdgeschoss. Aktuell gibt es VDSL-Internet (100 Mbit/s) und zwei Satellitenschüsseln. Glasfaserinternet wird im Jahr 2027 installiert. Es gibt eine 5G-Mobilfunkabdeckung von Telekom. Die beiden Einbauküchen und sämtliche Möbel (sofern nicht anders angegeben) sind im Kaufpreis enthalten.

Das Haus hat eine Wohnfläche von 293 m² und ist aufgeteilt in:
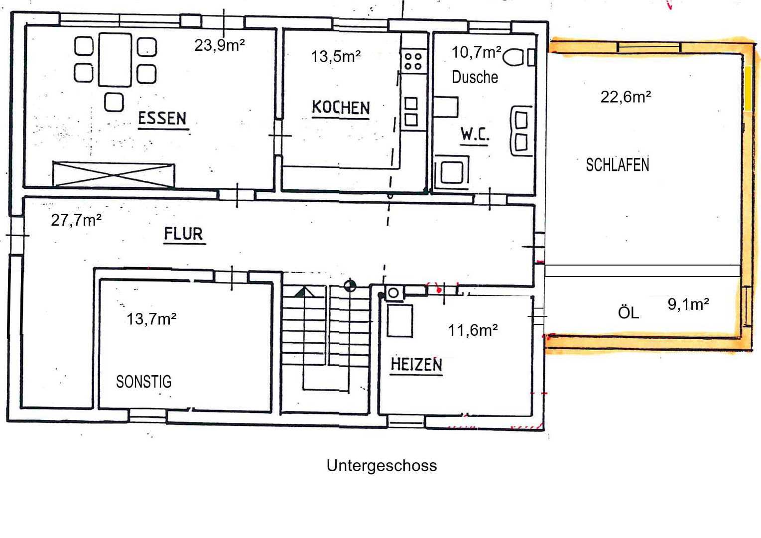
UNTERGESCHOSS - 112 m² - Esszimmer mit Panoramafenster - Schlafzimmer, Dusche/WC - Luxuriöse Einbauküche mit Essbereich - Tageslichtbad mit Dusche, 2 Waschbecken - Gefliester Boden - Große 48 m² Südterrasse mit ausfahrbarer Markise und Zugang zum Esszimmer.

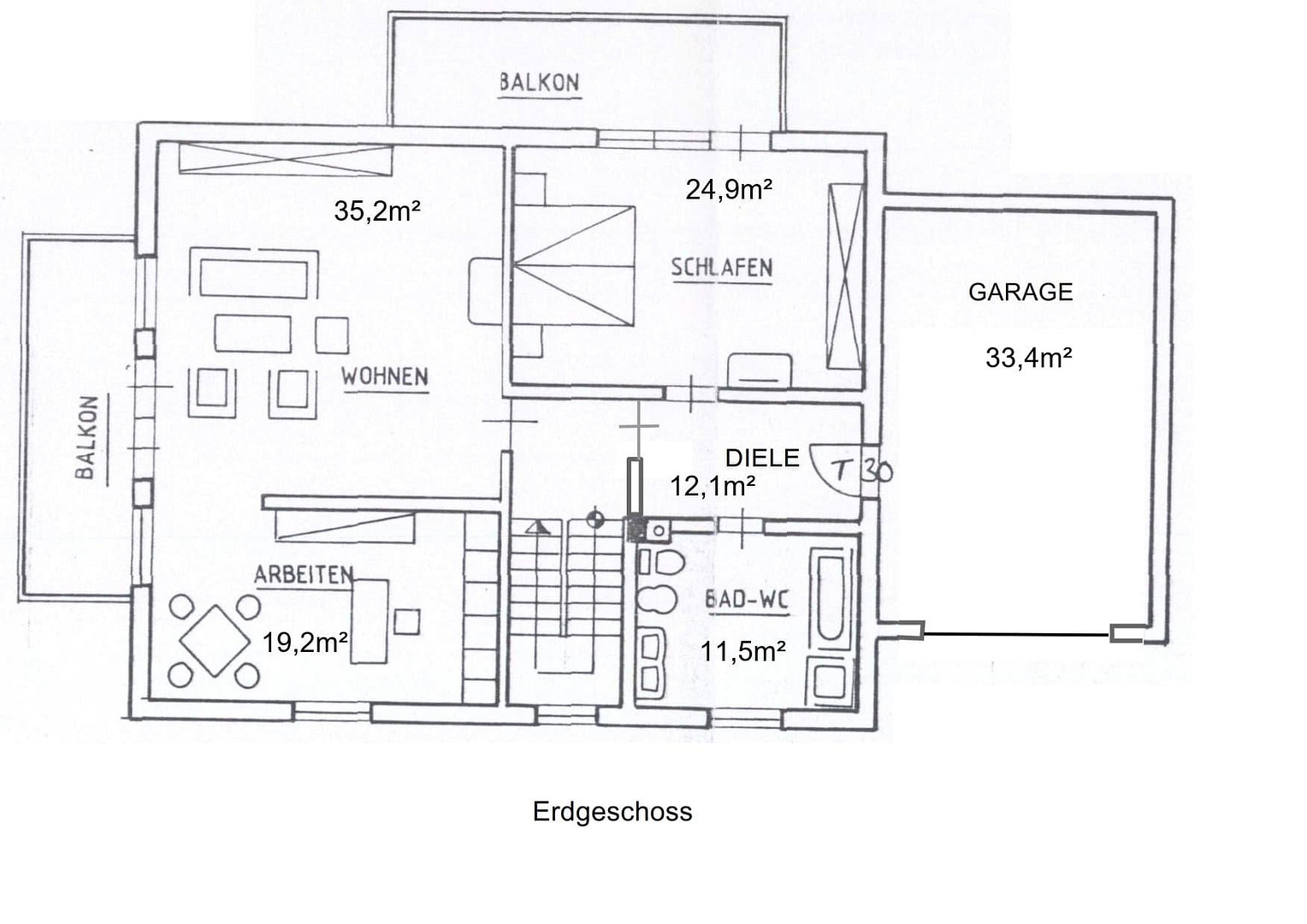
ERDGESCHOSS – 103 m² – Wohnzimmer, Arbeitszimmer, Schlafzimmer – Tageslichtbad mit Badewanne und Bidet – gefliestes Badezimmer und Flur – Teppichboden – 2 Balkone

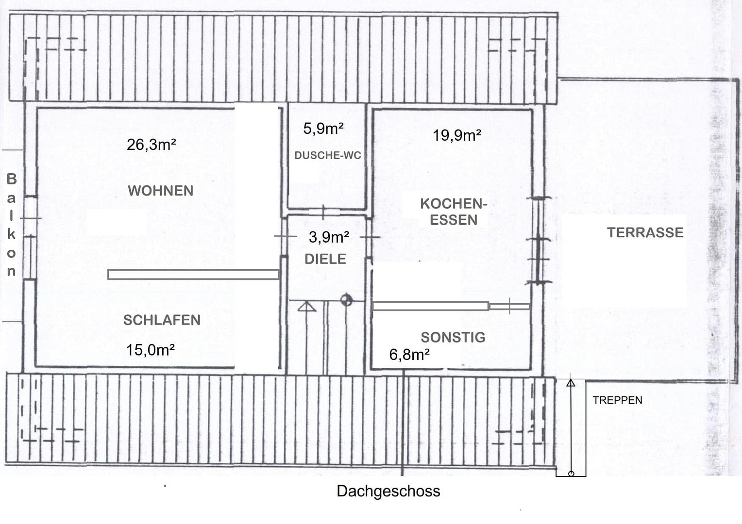
DACHGESCHOSS – 78 m² – Wohnzimmer, Schlafzimmer – Einbauküche mit Essbereich – Badezimmer mit Dusche und Tageslicht – Laminatboden – 32 m² große Dachterrasse und privater Balkon. Das DG kann über den Inneneingang als Familienbereich oder über den externen Zugang von der Dachterrasse als Einliegerwohnung genutzt werden. Die Wohnung wurde in den letzten 7 Jahren über Airbnb vermietet.

Interessieren Sie sich für dieses Haus?

Objekt-Nr
OM-141410
Objektart
Haus
Objekttyp
Einfamilienhaus
Aktuelle Nutzung
Nicht vermietet
Übernahme ab
Nach Vereinbarung

Kaufpreis & Nebenkosten

Kaufpreis
498.000 €
Kaufnebenkosten
ca. 23.890 €
Gesamtkosten
ca. 521.889 €

Aufschlüsselung der Kosten

Kaufpreis 498.000 €
Grunderwerbsteuer 17.430 € (3,50%)
Notarkosten 4.272 € (0,86%)
Grundbucheintrag 2.188 € (0,44%)
Maklerprovision 0€ (0%)

* Kosten für Notar und Grundbuch wurden berechnet basierend auf der Gebührenordnung für Notare. Angenommen wurde die Beurkundung des Kaufs zum angegebenem Kaufpreis sowie eine Grundschuldbestellung i.H.v. 80% des Kaufpreises. Durch Tätigkeiten wie Grundschuldlöschung, Notaranderkonto usw. können weitere Kosten entstehen. Details zu Notar- und Grundbuchkosten

Passt diese Immobilie zu meinem Budget?

Geschätzte Monatsrate: 1.863€

Mehr Genauigkeit in wenigen Sekunden:

Durch die Angabe einiger Basisinformationen wird die geschätzte Monatsrate individuell für Sie berechnet. Für dieses und für alle weiteren Immobilienangebote auf ohne-makler.net

Basierend auf Eigenkapital 20% vom Kaufpreis zzgl. der Kaufnebenkosten / 10 Jahren Sollzinsbindung / 2% anfängliche Tilgung / Effektivzins 3,61%

Einzelheiten

Zustand
gepflegt
Anzahl Etagen
3
Nutzfläche
160 m²
Badezimmer (Anzahl)
3
Schlafzimmer (Anzahl)
3
Anzahl Garagen
1
Anzahl Stellplätze
1
Bodenbeläge
Laminat, Teppichboden, Fliesen
Heizung
Zentralheizung
Baujahr
2001
Ausstattung
Balkon, Terrasse, Keller, Dachterrasse, Vollbad, Duschbad, Einbauküche
Infrastruktur
Kindergarten

Angaben zur Ausstattung

Das Haus wurde zwischen 1995 und 2001. Es verfügt über eine Rundum-Wärmedämmung, und der gesamte Garagenausbau von der Bodenplatte bis zur Dachterrasse ist ebenfalls mit 5 cm Styropor gedämmt. Unter der gesamten Bodenplatte wurde ebenfalls eine 5 cm dicke Hartstyropor-Dämmung angebracht. Das Dach ist mit 10 cm Styropor gedämmt. In den Wohnräumen im Untergeschoss ist eine Warmwasser-Fußbodenheizung installiert. Die übrigen Geschosse verfügen über Heizkörper. Die Kellerdecke und die Decke zum Dachgeschoss sind vollständig aus Beton. Das Gebäude ist mit einem Blitzschutzsystem und zwei separaten Satellitenanlagen ausgestattet. Alle Fenster und Terrassentüren bestehen aus duroplastischem Kunststoff, und alle Jalousien sind elektrisch betrieben. Die Dachterrasse wurde im April 2019 neu abgedichtet und mit neuen Paneelen versehen. Der Balkon des EG-Schlafzimmers wurde im Mai 2020 neu abgedichtet und mit neuen Paneelen ausgestattet. Eine neue BWT AQA Perla Wasserenthärtungsanlage wurde im Juni 2019 installiert. Die Hausfassade und die Dachvorsprünge wurden im Mai 2024 komplett gestrichen.

Lage

Die medizinische Versorgung erfolgt durch Ärzte in Burghaslach und Scheinfeld. Ein Krankenhaus befindet sich in Neustadt an der Aisch. Im Dorf gibt es einen Kindergarten, und Schüler aller Altersstufen (Grundschule, Mittelschule, Realschule und Gymnasium) werden mit dem Bus abgeholt. Ein Hotel, zwei Restaurants und ein Sportheim sind ebenfalls im Dorf vorhanden. Das Haus liegt an einem Berghang (Südseite) mit freiem Ausblick. Es befindet sich 7 km von der A3 Nürnberg-Frankfurt und 8 km von der B8 entfernt. Die nächstgelegenen Städte sind Scheinfeld (9 km), Burghaslach (7 km), Neustadt/Aisch (20 km) und Erlangen (25 km).

Lage-Check

Natur
Kinderfreundlich
Gastronomie
Gesundheit
Sport
Einkaufen
Kultur
Nachtleben
ÖPNV

Energie

0 25 50 75 100 125 150 175 200 225 ≥250
Endenergieverbrauch
91,00 kWh/(m²a)
Energieeffizienzklasse
C
Energieausweistyp
Verbrauchsausweis
Wesentlicher Energieträger
Öl

Sonstiges

Kaufpreis inklusive zweier Einbauküchen und Möbeln. Das Haus ist ab Mai 2026 verfügbar.

Makleranfragen unerwünscht! Nach § 7 UWG sind unaufgeforderte Kontaktaufnahmen durch Makler ohne ausdrückliche Einwilligung des Empfängers verboten!

Nachricht direkt an den Verkäufer senden

Fragen zu diesem Haus? Interesse zeigen oder einen Besichtigungstermin vereinbaren?

Klicken Sie hier, um dem Anbieter eine Nachricht zu senden: