ohne-makler
Exposé drucken

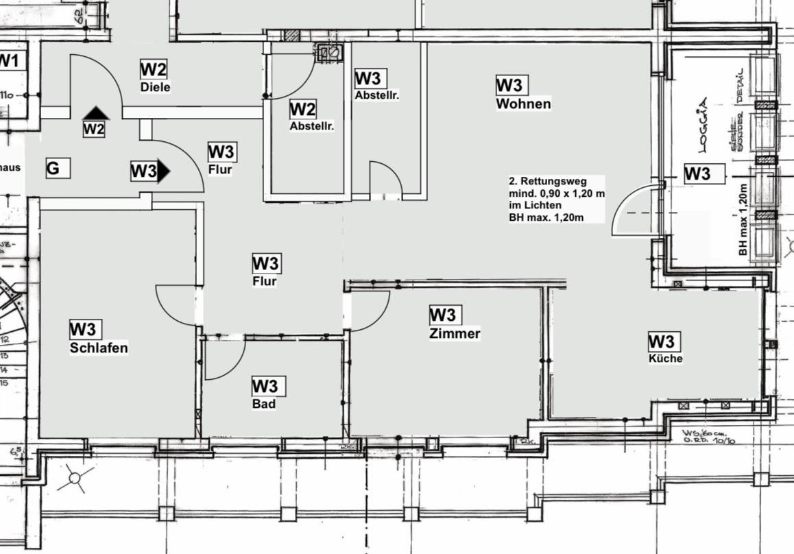
3-Zimmer-Wohnung (W3) zentral in Ahlen ab 01.08.2026

59227 Ahlen – Nordrhein-Westfalen
900 €
Kaltmiete (zzgl. NK)
3
Zimmer
80 m²
Wohnfläche
Privatangebot
Wohnung

Erstbezug nach Kernsanierung – Moderne 3-Zimmer-Wohnung (W3) zentral in Ahlen mit offenem Wohnbereich & Balkon – ca. 80 m² – ab 01.08.26.

Zur Vermietung steht eine frisch kernsanierte und hochwertig ausgestattete 3-Zimmer-Wohnung mit ca. 80 m² Wohnfläche. (W3) Es handelt sich um einen Erstbezug, ideal für Singles, Paare, kleine Familien, die modernen Wohnkomfort schätzen.

Ausstattung & Highlights:
• Erstbezug nach vollständiger Kernsanierung
• Fußbodenheizung in der gesamten Wohnung
• elektrische Rolladen
• 2 Schlafzimmer
• heller, offener Wohn- und Küchenbereich (ineinander übergehend)
• modernes Badezimmer mit Dusche
• kleiner Hauswirtschaftsraum
• überdachter Balkon/ Loggia
• Tiefgaragenstellplatz in der Nähe (separat zu mieten)

Das Haus ist zudem mit einem Treppenlift ausgestattet, dies bietet zusätzlichen Komfort für ältere Personen oder Menschen mit Handicap.

Das Objekt befindet sich zentral gelegen in direkter Nähe zum Rathaus. Der Stadtpark mit Spielplatz ist ebenfalls in unmittelbarer Nähe.
Die Fußgängerzone und der Marktplatz ist zu Fuß innerhalb von 2 Minuten zu erreichen.

Mietkonditionen:­
• Kaltmiete: 900 €
• Hausgeld/Nebenkosten: 250 €
• Verfügbar ab: 01.08.26

Bei Interesse freuen wir uns über eine Nachricht mit einer kurzen Vorstellung Ihrer Person(en).

Besichtigungste­rmine können nach Absprache vereinbart werden.

Interessieren Sie sich für diese Wohnung?

Objekt-Nr
OM-451236
Objektart
Wohnung
Objekttyp
Wohnung
Übernahme ab
1. August 2026

Miete & Nebenkosten

Kaltmiete
900 € (zzgl. NK)
Heizkosten
150 €
Nebenkosten ohne Heizkosten
100 €
Summe Nebenkosten/Heizkosten
250 €
Mietsicherheit
2.700 €

Einzelheiten

Zustand
Erstbezug nach Sanierung
Anzahl Etagen
1
Stockwerk
1. OG
Nutzfläche
80 m²
Badezimmer (Anzahl)
1
Schlafzimmer (Anzahl)
2
Bodenbeläge
Vinyl / PVC
Heizung
Fußbodenheizung
Baujahr
2026
Ausstattung
Balkon, Barrierefrei
Infrastruktur
Apotheke, Lebensmittel-Discount, Allgemeinmediziner, Kindergarten, Grundschule, Hauptschule, Realschule, Gymnasium, Gesamtschule, Öffentliche Verkehrsmittel

Angaben zur Ausstattung

Erstbezug nach Sanierung

Lage

Ahlen Innenstadt

Lage-Check

Kinderfreundlich
Gesundheit
Gastronomie
Einkaufen
Sport
Kultur
Nachtleben
ÖPNV
Natur

Energie

Wesentlicher Energieträger
Gas

Sonstiges

Makleranfragen unerwünscht! Nach § 7 UWG sind unaufgeforderte Kontaktaufnahmen durch Makler ohne ausdrückliche Einwilligung des Empfängers verboten!

Nachricht direkt an den Vermieter senden

Fragen zu dieser Wohnung? Interesse zeigen oder einen Besichtigungstermin vereinbaren?

Klicken Sie hier, um dem Anbieter eine Nachricht zu senden:

Angebot von: Alexander Brockmann