ohne-makler
Exposé drucken

Schönes Reihenhaus mit Garten, Balkon, Terrasse & viel Platz

Gottfried-Jähnichen-Weg 22, 04316 Leipzig Baalsdorf (Baalsdorf) – Sachsen
1.750 €
Kaltmiete (zzgl. NK)
6
Zimmer
160 m²
Wohnfläche
156 m²
Grundstücksfläche
Privatangebot
Haus
Reihenhaus

Das Reihenmittelhaus befindet sich östlich von Leipzig. Es verfügt über vier Geschosse mit Garage im Haus.

Im EG befindet sich die helle Küche, das lichtdurchflutete Wohnzimmer und eine Gästetoilette. Aus dem Wohnzimmer erreichen Sie einen Balkon mit ca. 10m².

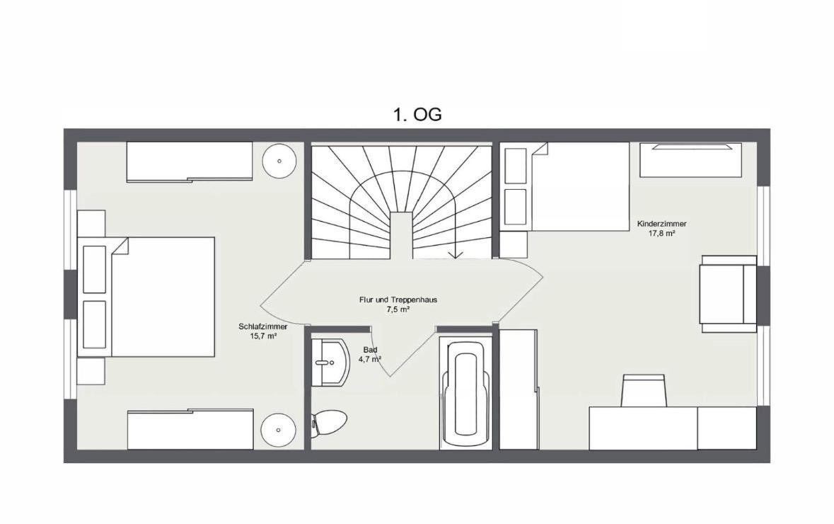
Im 1. OG sind ein Bad mit Badewanne sowie zwei Zimmer vorhanden, die sich ideal als Schlaf- oder Kinderzimmer eigenen. In beiden Zimmern sind jeweils 2 Fenster mit Rollladen.

Das große Dachgeschoss bietet einen großen Wohnraum. Dieser kann zweigeteilt als Wohnraum und Büro oder Schlafeäume genutzt werden. Auf einer Seite sind 2 Dachfenster und auf der anderen Seite 1 Dachfenster . In den oberen Geschossen sind alle Böden mit Laminat oder Fliesen ausgestattet.

Im Untergeschoss befindet sich die Garage sowie eine Nische, die als separater Abstellraum genutzt werden kann. Zudem ist die Heizung in einer vorderen Nische separiert. Durch eine verschließbare Eingangstür gelangt man in die sich im hinteren Bereich befindende separate Wohneinheit. Diese verfügt über ein Bad mit Badewanne, einen Schlafraum und eine Wohnküche, über die man die Terrasse mit ca. 20 m² mit anschließendem Garten erreicht. Diese kleine separate Einliegerwohnung eignet sich ideal für einen Senior, einen Teenager oder kann als Gäste- oder Ferienwohnung genutzt werden. Im Untergeschoss sind Fliesen und Parkett verlegt.

Das Gebäude befindet sich in einem gepflegten und zeitgerechten Zustand und soll ab sofort bezogen werden.

Zum Grundstück gehören ein außenliegender PKW-Stellplatz und ein Garagenstellplatz. Diese sind für eine monatliche Miete verbindlich mit anzumieten.

Interessieren Sie sich für dieses Haus?

Objekt-Nr
OM-450418
Objektart
Haus
Objekttyp
Reihenhaus
Übernahme ab
Nach Vereinbarung

Miete & Nebenkosten

Kaltmiete
1.750 € (zzgl. NK)
Heizkosten
120 €
Nebenkosten ohne Heizkosten
230 €
Summe Nebenkosten/Heizkosten
350 €
Mietsicherheit
5.250 €

Einzelheiten

Zustand
gepflegt
Nutzfläche
190 m²
Badezimmer (Anzahl)
3
Schlafzimmer (Anzahl)
3
Anzahl Garagen
1
Anzahl Stellplätze
1
Bodenbeläge
Parkett, Laminat, Fliesen
Heizung
Sonstiges
Baujahr
1995
Ausstattung
Balkon, Terrasse, Garten, Keller, Vollbad, Gäste-WC
Infrastruktur
Apotheke, Lebensmittel-Discount, Allgemeinmediziner, Kindergarten, Grundschule, Hauptschule, Realschule, Gymnasium, Gesamtschule, Öffentliche Verkehrsmittel

Lage

Baalsdorf

Lage-Check

Kinderfreundlich
150m
Einkaufen
200m
Gesundheit
1.4km
Sport
1.2km
Gastronomie
450m
Kultur
2.4km
ÖPNV
250m
Natur
100m
Nachtleben
500m

Energie

0 25 50 75 100 125 150 175 200 225 ≥250
Endenergieverbrauch
76,00 kWh/(m²a)
Energieeffizienzklasse
B
Energieausweistyp
Verbrauchsausweis
Wesentlicher Energieträger
Gas

Sonstiges

Makleranfragen unerwünscht! Nach § 7 UWG sind unaufgeforderte Kontaktaufnahmen durch Makler ohne ausdrückliche Einwilligung des Empfängers verboten!

Nachricht direkt an den Vermieter senden

Fragen zu diesem Haus? Interesse zeigen oder einen Besichtigungstermin vereinbaren?

Klicken Sie hier, um dem Anbieter eine Nachricht zu senden: