ohne-makler
Exposé drucken

Ihr Traum vom Landleben - Charmantes Einfamilienhaus ideal für Naturliebhaber und Pferdefreunde

71543 Wüstenrot – Baden-Württemberg
760.000 €
6
Zimmer
129 m²
Wohnfläche
4.804 m²
Grundstücksfläche
Privatangebot
Haus
Einfamilienhaus

Naturnah wohnen mit großzügigem Anwesen

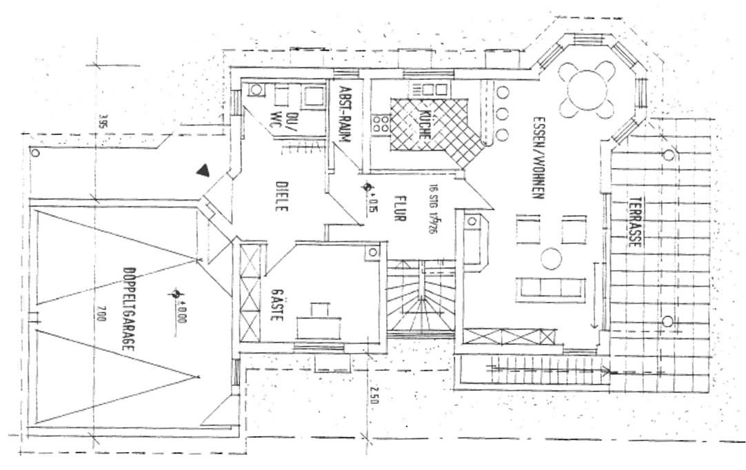
Erdgeschoss:
-----­----------------------
offene­ Wohnküche mit Esszimmer und Wohnzimmer mit Kaminofen | besonders große Terrasse mit Blick ins Grüne und auf die eigenen Tiere | Büro oder Gästezimmer | Abstellraum oder Speisekammer | separates Gästebad mit Dusche und WC | offenes Treppenhaus mit schöner heller Diele | direkter Zugang in die Garage | gesamtes EG Fußbodenheizung (außer Büro)

Dachgeschoss:
------­---------------------
3 Zimmer ( 2 davon mit Balkon) | 1 Bad mit bodentiefer Dusche und Badewanne | WC (Tageslicht) mit Fußbodenheizung | 1 kleiner Abstellraum

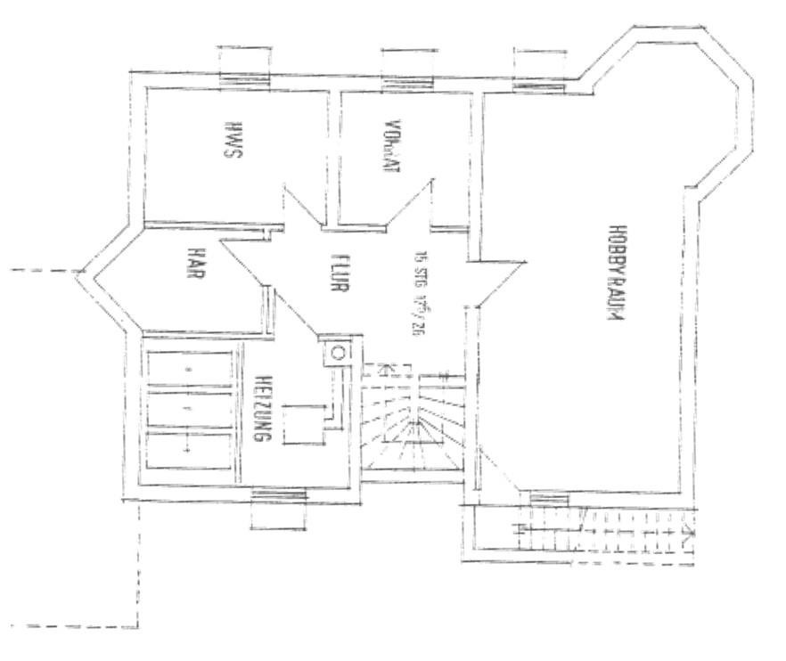
Untergeschoss:
---------------------------
2 Hobbyräume (aktuell als Aufenthaltsraum mit Küchenzeile und Werkstatt ausgebaut) | Abstellraum | großzügiges WC mit Waschbecken und Wassertrennsystem zur Pferdehaltung | Wäscheraum inklusive Waschbecken | Heizraum mit Öltanks

Besonderheiten | Extras:
---------------------­------
kl. Scheune mit beheiztem Außenwasserhahn | gepflastertes Paddock | Stallgebäude mit Futterkammer, inkl. beheiztem Wasseranschluss | Sattelkammer mit Weidestromanschluss | Offenstall | direkter Pferdezugang zur Koppel --> ideal für bis zu 3 Pferde | Wassertrennsystem für Pferdetränke | beheizte Außentränke | 3450 m² eingezäunte Weidefläche

außergewöhnlich­e Terrasse | schöner Innenhof | großzügiger Garten mit altem Baumbestand, befestigte Wege | 2 angelegte Freisitze | offene Gartenlaube mit Holzlager | 1000 l Zysterne | hochwertige Fliegengitter an vielen Fenstern und Türen | Photovoltaikanlage | schnelles Internet

Interessieren Sie sich für dieses Haus?

Objekt-Nr
OM-437550
Objektart
Haus
Objekttyp
Einfamilienhaus
Aktuelle Nutzung
Nicht vermietet
Übernahme ab
Nach Vereinbarung

Kaufpreis & Nebenkosten

Kaufpreis
760.000 €
Kaufnebenkosten
ca. 47.747 €
Gesamtkosten
ca. 807.747 €

Aufschlüsselung der Kosten

Kaufpreis 760.000 €
Grunderwerbsteuer 38.000 € (5,00%)
Notarkosten 6.450 € (0,85%)
Grundbucheintrag 3.298 € (0,43%)
Maklerprovision 0€ (0%)

* Kosten für Notar und Grundbuch wurden berechnet basierend auf der Gebührenordnung für Notare. Angenommen wurde die Beurkundung des Kaufs zum angegebenem Kaufpreis sowie eine Grundschuldbestellung i.H.v. 80% des Kaufpreises. Durch Tätigkeiten wie Grundschuldlöschung, Notaranderkonto usw. können weitere Kosten entstehen. Details zu Notar- und Grundbuchkosten

Passt diese Immobilie zu meinem Budget?

Geschätzte Monatsrate: 2.837€

Mehr Genauigkeit in wenigen Sekunden:

Durch die Angabe einiger Basisinformationen wird die geschätzte Monatsrate individuell für Sie berechnet. Für dieses und für alle weiteren Immobilienangebote auf ohne-makler.net

Basierend auf Eigenkapital 20% vom Kaufpreis zzgl. der Kaufnebenkosten / 10 Jahren Sollzinsbindung / 2% anfängliche Tilgung / Effektivzins 3,60%

Einzelheiten

Zustand
gepflegt
Anzahl Etagen
2
Nutzfläche
107,3 m²
Badezimmer (Anzahl)
2
Schlafzimmer (Anzahl)
3
Anzahl Garagen
2
Anzahl Carports
2
Anzahl Stellplätze
4
Bodenbeläge
Laminat, Fliesen, Vinyl / PVC
Heizung
Fußbodenheizung
Baujahr
1998
Ausstattung
Balkon, Terrasse, Garten, Keller, Vollbad, Duschbad, Einbauküche, Gäste-WC, Kamin
Infrastruktur
Apotheke, Lebensmittel-Discount, Allgemeinmediziner, Kindergarten, Grundschule, Öffentliche Verkehrsmittel

Angaben zur Ausstattung

Das Haus präsentiert sich in einem sehr gepflegten Zustand und ermöglicht einen unkomplizierten Einzug mit nur geringem Aufwand. Die helle Raumgestaltung schafft eine freundliche, einladende Wohnatmosphäre. Die Außenfassade wurde 2019 frisch gestrichen und unterstreicht den gepflegten Gesamteindruck der Immobilie.

Lage

Zwischen Heilbronn und Schwäbisch Hall, eingebettet in die idyllische Landschaft des Naturparks Schwäbisch-Fränkischer Wald, erwartet Sie dieses charmante Einfamilienhaus mit hellem Wohnambiente und außergewöhnlichem Grundstück – ideal für Naturliebhaber und Pferdefreunde.

In ruhiger Ortsrandlage eines Teilorts von Wüstenrot genießen Sie hier absolute Privatsphäre und direkten Zugang zu Wiesen und Wäldern. Das großzügige Grundstück mit 1.354 m² bietet vielfältige Nutzungsmöglichkeiten und wird durch unmittelbar angrenzende landwirtschaftliche Flächen mit weiteren ca. 3.450 m² ergänzt – ein Paradies für Tierhaltung und naturnahes Leben.

Lage-Check

Natur
Sport
Kinderfreundlich
Gesundheit
Gastronomie
Einkaufen
Kultur
Nachtleben
ÖPNV

Energie

Endenergieverbrauch
111,00 kWh/(m²a)
Energieeffizienzklasse
D
Energieausweistyp
Verbrauchsausweis
Wesentlicher Energieträger
Öl

Sonstiges

Wohnen, wo andere Erholung suchen.
---------------------­----------------------
Ob als Rückzugsort vom hektischen Alltag, als Zuhause für Ihre Familie oder als Lebensmittelpunkt mit Platz für Pferde und andere tierische Begleiter – dieses Anwesen vereint ländliche Idylle mit Wohnkomfort und Entwicklungspotenzial.

Film­ über das Anwesen, bitte Link in youtube kopieren und runter scrollen:
-------------------­------------------------------­---------------------------
y­outube.com/watch?v=0M7b7eU-S0g­

Finanzierungsnachweis:
--­-------------------------
Bes­ichtigungstermine können nur bei Vorlage eines aktuellen Finanzierungsnachweises Ihrer Bank vereinbart werden. Vielen Dank für Ihr Verständnis.

Makleranfragen unerwünscht! Nach § 7 UWG sind unaufgeforderte Kontaktaufnahmen durch Makler ohne ausdrückliche Einwilligung des Empfängers verboten!

Nachricht direkt an den Verkäufer senden

Fragen zu diesem Haus? Interesse zeigen oder einen Besichtigungstermin vereinbaren?

Klicken Sie hier, um dem Anbieter eine Nachricht zu senden: