ohne-makler
Exposé drucken
465.000 €
7,5
Zimmer
163,31 m²
Wohnfläche
361 m²
Grundstücksfläche
Privatangebot
Haus
Doppelhaushälfte

Die Immobilie besticht durch ihre ruhige und dennoch verkehrsgünstige Lage in einem gewachsenen und gepflegten Wohngebiet des sich durch hohe Lebensqualität auszeichnenden Kurortes Waldbronn. Bei der angebotenen Doppelhaushälfte fällt besonders das durchdachte Wohnkonzept mit überzeugender Raumaufteilung positiv auf.
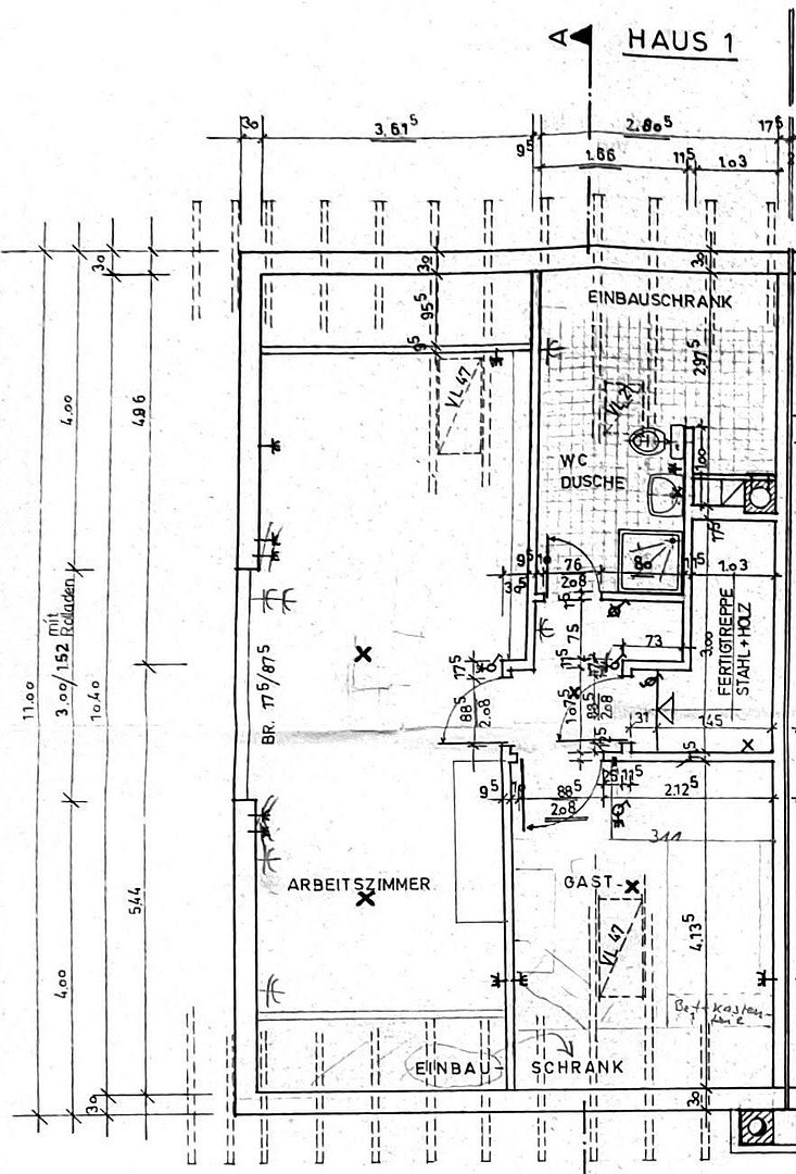
Das Haus betritt man durch einen Flur, an dem ein Gäste-WC mit Waschbecken sowie ein kleiner Abstellraum angrenzt. Die Tür geradeaus führt in einen offenen Wohnbereich mit Treppenhaus. Zur Südseite öffnet sich ein großzügiges Wohnzimmer mit Kamin sowie Zugang zu Terrasse und ruhigem Hintergarten. Nördlich liegt das Esszimmer, direkt neben der Küche.
Im Untergeschoss befindet sich von einem offenen Flur abgehend ein (Hobby-)Raum mit extra-Zugang über eine Außentreppe, eine Waschküche mit ebenerdiger Dusche sowie ein großer (Vorrats-)Keller mit reichlich Stauraum. Im kleinen Heizkeller (geht vom Hobbyraum ab) befindet sich die Ölheizung, deren Tank (10.000 Liter) unter der Einfahrt vor dem Haus liegt.
Im Obergeschoss befinden sich 3 (Kinder)Zimmer, sowie ein (Eltern)Schlafzimmer, ein Badezimmer mit zwei Waschbecken, Badewanne und Dusche. Die zwei auf der Südseite gelegenen Zimmer haben jeweils einen Zugang auf den Balkon.
Über die vom Keller bis ins Dach geführte Stahl-Holztreppe gelangt man nach oben hin in das Dachgeschoss. Von einem kleinen Flur aus erreicht man ein (Gäste)Bad mit WC und Dusche, ein (Gäste)Zimmer sowie ein großes Dachzimmer mit Ausblick und Klimaanlage.
Zur Immobilie gehört außerdem eine Garage, die nicht nur Platz für ein Auto bietet, sondern auch zusätzlichen Raum für das Abstellen von Fahrrädern und Gartenutensilien.

Interessieren Sie sich für dieses Haus?

Objekt-Nr
OM-435160
Objektart
Haus
Objekttyp
Doppelhaushälfte
Aktuelle Nutzung
Nicht vermietet
Übernahme ab
Nach Vereinbarung

Kaufpreis & Nebenkosten

Kaufpreis
465.000 €
Kaufnebenkosten
ca. 29.347 €
Gesamtkosten
ca. 494.346 €

Aufschlüsselung der Kosten

Kaufpreis 465.000 €
Grunderwerbsteuer 23.250 € (5,00%)
Notarkosten 4.034 € (0,87%)
Grundbucheintrag 2.063 € (0,44%)
Maklerprovision 0€ (0%)

* Kosten für Notar und Grundbuch wurden berechnet basierend auf der Gebührenordnung für Notare. Angenommen wurde die Beurkundung des Kaufs zum angegebenem Kaufpreis sowie eine Grundschuldbestellung i.H.v. 80% des Kaufpreises. Durch Tätigkeiten wie Grundschuldlöschung, Notaranderkonto usw. können weitere Kosten entstehen. Details zu Notar- und Grundbuchkosten

Passt diese Immobilie zu meinem Budget?

Geschätzte Monatsrate: 1.758€

Mehr Genauigkeit in wenigen Sekunden:

Durch die Angabe einiger Basisinformationen wird die geschätzte Monatsrate individuell für Sie berechnet. Für dieses und für alle weiteren Immobilienangebote auf ohne-makler.net

Basierend auf Eigenkapital 20% vom Kaufpreis zzgl. der Kaufnebenkosten / 10 Jahren Sollzinsbindung / 2% anfängliche Tilgung / Effektivzins 3,67%

Einzelheiten

Zustand
renovierungsbedürftig
Anzahl Etagen
4
Badezimmer (Anzahl)
2
Anzahl Garagen
1
Bodenbeläge
Teppichboden, Fliesen, Vinyl / PVC
Heizung
Zentralheizung
Baujahr
1976
Ausstattung
Balkon, Terrasse, Garten, Keller, Vollbad, Einbauküche, Gäste-WC, Kamin
Infrastruktur
Apotheke, Lebensmittel-Discount, Allgemeinmediziner, Kindergarten, Grundschule, Hauptschule, Realschule, Gymnasium, Öffentliche Verkehrsmittel

Angaben zur Ausstattung

• Massive Bauweise
• Tageslicht in allen Zimmern (außer Waschküche und Vorratskeller)
• Klimaanlage im großen Dachzimmer
• Fenster mit 2-fach-Verglasung
• Stahl-Holztreppen
• Kamin im Wohnzimmer
• 2 Tageslicht-Bäder, zusätzlich eine ebenerdige Dusche im Keller, Gäste-WC
• Garage, teilsaniert 2019, mit zusätzlichem Fahrradabteil und elektrischem Garagentor
• Süd-Terrasse
• Süd-Balkon, teilsaniert 2019
• Westfassade 2020 erneuert und gedämmt
• Öl-Zentralheizung, Umwälzpumpe 2024 erneuert
• Viel Staufläche im Keller sowie in mehreren Abseiten/Kniestöcken des Dachgeschosses

Lage

Die Immobilie befindet sich in sehr ruhiger Lage (keine Durchgangsstraße, nach hinten versetzt) auf einer leichten Anhöhe zwischen den Ortsteilen Reichenbach und Busenbach. Das kinderfreundliche Umfeld zeichnet sich durch mehrere nahgelegene Spielplätze aus.
Verschiedene Einkaufsmöglichkeiten und Restaurants sind bequem fußläufig erreichbar. Kindergarten, Schule, Ärzte und Apotheken befinden sich im nahen Umfeld. Auch Freizeitangebote (u.a. Sportplätze, Tennisplätze, Freibad, Eislaufhalle) und Erholungsmöglichkeiten (z.B. Kurpark mit Minigolf, Albtherme, Nordschwarzwald) liegen nur wenige Gehminuten entfernt.
Eine gute Anbindung an den öffentlichen Nahverkehr ist insbesondere durch die S11 sowohl Richtung Karlsbad als auch Richtung Ettlingen und Karlsruhe gegeben. Zusätzliche Buslinien mit nahegelegenen Haltstellen ergänzen dieses Angebot. Eine schnelle Anbindung ist zudem durch die Autobahn A8 gewährleistet.

Lage-Check

Natur
Sport
Kinderfreundlich
Gesundheit
Einkaufen
Gastronomie
Kultur
Nachtleben
ÖPNV

Energie

Energieeffizienzklasse
H
Energieausweistyp
Bedarfsausweis
Wesentlicher Energieträger
Öl
Endenergiebedarf
272,70 kWh/(m²a)

Sonstiges

Makleranfragen unerwünscht! Nach § 7 UWG sind unaufgeforderte Kontaktaufnahmen durch Makler ohne ausdrückliche Einwilligung des Empfängers verboten!

Nachricht direkt an den Verkäufer senden

Fragen zu diesem Haus? Interesse zeigen oder einen Besichtigungstermin vereinbaren?

Klicken Sie hier, um dem Anbieter eine Nachricht zu senden: