ohne-makler
Exposé drucken

Wohn- und Geschäftshaus - Anlageobjekt mit signifikantem Potential

Dotzheimer Straße 61, 65197 Wiesbaden – Hessen
3.950.000 €
160 m²
Wohnfläche
467 m²
Grundstücksfläche
Zinshaus oder Renditeobjekt
Wohn- und Geschäftshaus

WIESBADEN - DOTZHEIME STRASSE 61

Das Wohn- und Geschäftshaus wurde 1964 gebaut. Das Objekt verfügt über ca. 1.208 qm vermietbare Flächen sowie 8 Außen-Stellplätze.

Das Objekt ist vollständig vermietet.

Allerdings sind die Mieten weit unter dem Marktniveau, sodass mit wenig Aufwand höhere Mieten gerechtfertigt sein werden.

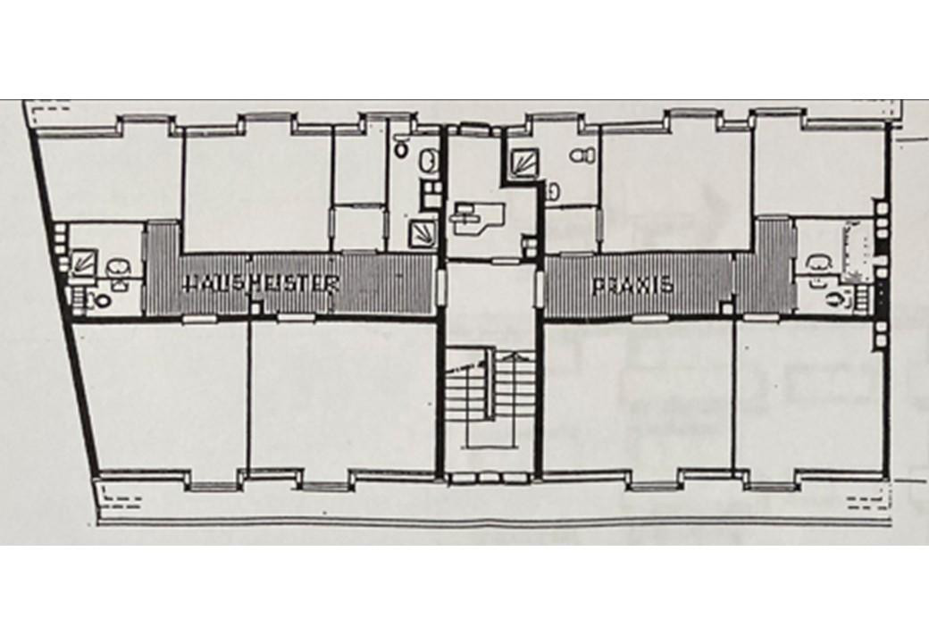
Es bestehen zwei Einzelhandelsflächen im EG: Kiosk/DHL und Schnellimbiß/Döner.
Beide sind durch die unmittelbar vor dem Objekt befindliche Bushaltestelle sehr gut frequentiert.

In den Geschoßen 1 bis 4 befinden sich acht gewerbliche Einheiten (Arztpraxen, Steuerberatungsbüro, Rechtsanwaltskanzlei, u.ä.). Diese Mieter sind seit sehr langer Zeit im Objekt und sind von den Kunden, Mandanten, Patienten sehr gut besucht.

Im 5. OG befinden sich 4 Wohnungen. Zwei davon werden von der Hausmeisterin (Wohnen und Büro) genutzt.

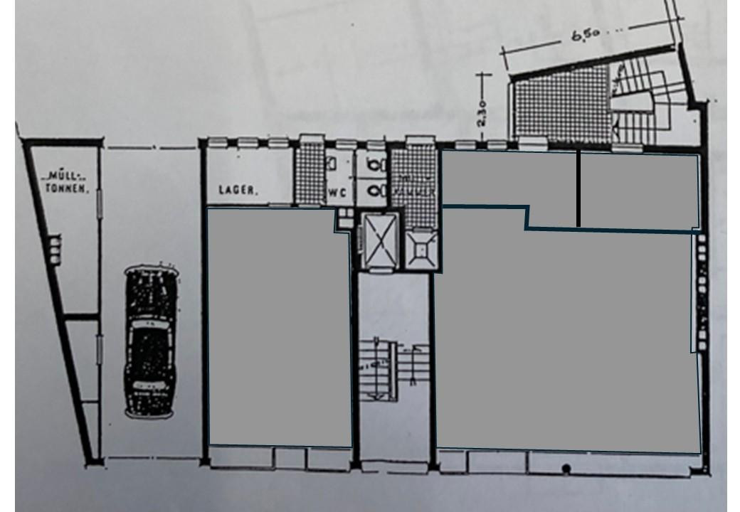
Im Keller befinden sich ca 88 qm Lagerraumflächen für den Kiosk und weitere Kellerräume für die anderen Mieter.

Im Hinterhof befinden sich 8 Stellplätze, die ebenfalls vermietet sind. Für die Lage der Immobilie in diesem Teil des Rheingauviertels sind 8 Stellplätze ein wichtiges Vermietungskriterium.

Die Mietverträge im EG (Kiosk und Imbiss) haben per Mai 2028 (Kiosk) und per Juli 2027 (Imbiss) jeweils eine 5-Jahres-Option.

Sämtliche anderen Mietverträge sind unbefristet und können regulär gekündigt werden.

Eine Umwandlung der Büro- und Praxisflächen in Wohnen ist technisch mit überschaubarem Aufwand möglich.

Interessieren Sie sich für dieses Angebot?

Objekt-Nr
OM-434084
Objektart
Zinshaus oder Renditeobjekt
Objekttyp
Wohn- und Geschäftshaus
Übernahme ab
Nach Vereinbarung

Kaufpreis & Nebenkosten

Kaufpreis
3.950.000 €
Kaufnebenkosten
ca. 281.323 €
Gesamtkosten
ca. 4.231.323 €
Preis pro m²
3.399,00 €

Aufschlüsselung der Kosten

Kaufpreis 3.950.000 €
Grunderwerbsteuer 237.000 € (6,00%)
Notarkosten 29.380 € (0,74%)
Grundbucheintrag 14.944 € (0,38%)
Maklerprovision 0€ (0%)

* Kosten für Notar und Grundbuch wurden berechnet basierend auf der Gebührenordnung für Notare. Angenommen wurde die Beurkundung des Kaufs zum angegebenem Kaufpreis sowie eine Grundschuldbestellung i.H.v. 80% des Kaufpreises. Durch Tätigkeiten wie Grundschuldlöschung, Notaranderkonto usw. können weitere Kosten entstehen. Details zu Notar- und Grundbuchkosten

Passt diese Immobilie zu meinem Budget?

Geschätzte Monatsrate: 14.747€

Mehr Genauigkeit in wenigen Sekunden:

Durch die Angabe einiger Basisinformationen wird die geschätzte Monatsrate individuell für Sie berechnet. Für dieses und für alle weiteren Immobilienangebote auf ohne-makler.net

Basierend auf Eigenkapital 20% vom Kaufpreis zzgl. der Kaufnebenkosten / 10 Jahren Sollzinsbindung / 2% anfängliche Tilgung / Effektivzins 3,60%

Einzelheiten

Zustand
gepflegt
Jahr letzte Modernisierung
2014
Anzahl Etagen
7
Gewerbefläche
960 m²
Gesamtfläche
1208 m²
Sonstige Flächen
88 m²
Anzahl Stellplätze
8
Nettomieteinnahmen (Soll) p.a.
268000 €
Nettomieteinnahmen (Ist) p.a.
181620 €
X-fache Mieteinnahmen
21,75
Anzahl der Einheiten
14
Bodenbeläge
Laminat, Teppichboden, Fliesen, Vinyl / PVC
Heizung
Zentralheizung
Baujahr
1964
Ausstattung
Keller, Aufzug
Infrastruktur
Apotheke, Lebensmittel-Discount, Allgemeinmediziner, Kindergarten, Grundschule, Hauptschule, Realschule, Gymnasium, Öffentliche Verkehrsmittel

Angaben zur Ausstattung

Alle Gewerbe- und Wohneinheiten sind in einem einwandfreien Zustand.
Die Mieter pflegen ihre Mietflächen.

Die Allgemeinflächen sind ebenfalls in einem tadellosen Zustand und werden regelmäßig gereinigt.

In den vergangenen 10 Jahren wurden folgende Sanierungsmaßnahmen umgesetzt:
- Alle Fenster wurden erneuert.
- Die Aufzugskabine wurde 2014 erneuert.
- Alle Elektroleitungen (mit Ausnahme einer Gewerbeeinheit) wurden erneuert.
- Eine neue Gaszentralheizung wurde eingebaut.
- Die vordere Außenfassade ist gedämmt und neu gestrichen (im rückwärtigen Bereich nicht)

Der Aufzug führt vom KG bis zum 4. OG.
Da die Wohnungen im 5. OG sind, sind diese nicht berrierfrei zu erreichen.

Lage

Die Immobilie befindet sich im Stadtteil Rheingauviertel, welches sehr beliebt ist für urbanes Wohnen.

Dieses Viertel grenzt im Osten unmittelbar an den Stadtteil Wiesbaden-Mitte an und ist somit sehr zentral gelegen.

Dieser Stadtteil ist in den Jahren 1898 bis etwa 1908 angelegt worden; somit ist dieses Gründerzeitviertel geprägt von attraktiven Gebäude aus der Jahrhundertwende – allein in der Dotzheimer Straße gibt es 13 Kulturbaudenkmäler.

Das Gebäude steht unmittelbar an der Dotzheimer Straße und eine eigene PKW-geeignete Zufahrt in den Innenhof, in dem sich acht KfZ-Stellplätze befinden.

In der Nähe des Objektes sind folgende Angebote zu finden:

- Arztpraxen, Apotheke, Pflegedienste, Rechtsanwälte
- Lebensmittelgeschäfte, Restaurants, Bäckerei, Imbiss, Drogeriemarkt, Bekleidungsgeschäfts,
- Friseure, Nagelstudio, Beauty Studio, Taxidienst
- Evangelische Kirche, katholische Kirche
- Schulen, Gymnasium
... und vieles andere mehr.

Insbesondere befindet sich als direkter Nachbar auf der linken Seite ein sehr großer dm Drogeriemarkt, der ebenfalls zur sehr guten Frequenz beiträgt.

Vor dem Haus befindet sich eine Bushaltestelle „Dreiweidenstraße“ auf der Seite des Gebäudes und in wenigen Metern entfernt auf der gegenüberliegenden Straßenseite die Haltestelle „Eltviller Straße“. Hier halten die Linien 4, 17, 18, 23, 24, 27 und 45.

Lage-Check

Gastronomie
50m
Einkaufen
50m
Sport
300m
Gesundheit
50m
ÖPNV
50m
Kultur
150m
Nachtleben
50m
Kinderfreundlich
250m
Natur
450m

Energie

Wesentlicher Energieträger
Gas

Sonstiges

D.R.E.A.M.

Deutsche Real Estate Asset Management GmbH
Siesmayerstraße 23
60323 Frankfurt am Main

Geschäftsführer:Dipl.-Wi.-­Ing. Franz Lucien Mörsdorf
- Sitz der Gesellschaft:Frankfurt am Main
- Registergericht:Frankfurt am Main HRB 77596

Makleranfragen unerwünscht! Nach § 7 UWG sind unaufgeforderte Kontaktaufnahmen durch Makler ohne ausdrückliche Einwilligung des Empfängers verboten!

Nachricht direkt an den Verkäufer senden

Fragen zum Objekt? Interesse zeigen oder einen Besichtigungstermin vereinbaren?

Klicken Sie hier, um dem Anbieter eine Nachricht zu senden:

Courtage: Keine Provision für Käufer

Angebot von: Franz Mörsdorf