ohne-makler
Exposé drucken

Wunderschöne 2-Zi-Whg im Herzen von Vorsfelde

38448 Wolfsburg - Vorsfelde (Vorsfelde) – Niedersachsen
650 €
Kaltmiete (zzgl. NK)
2
Zimmer
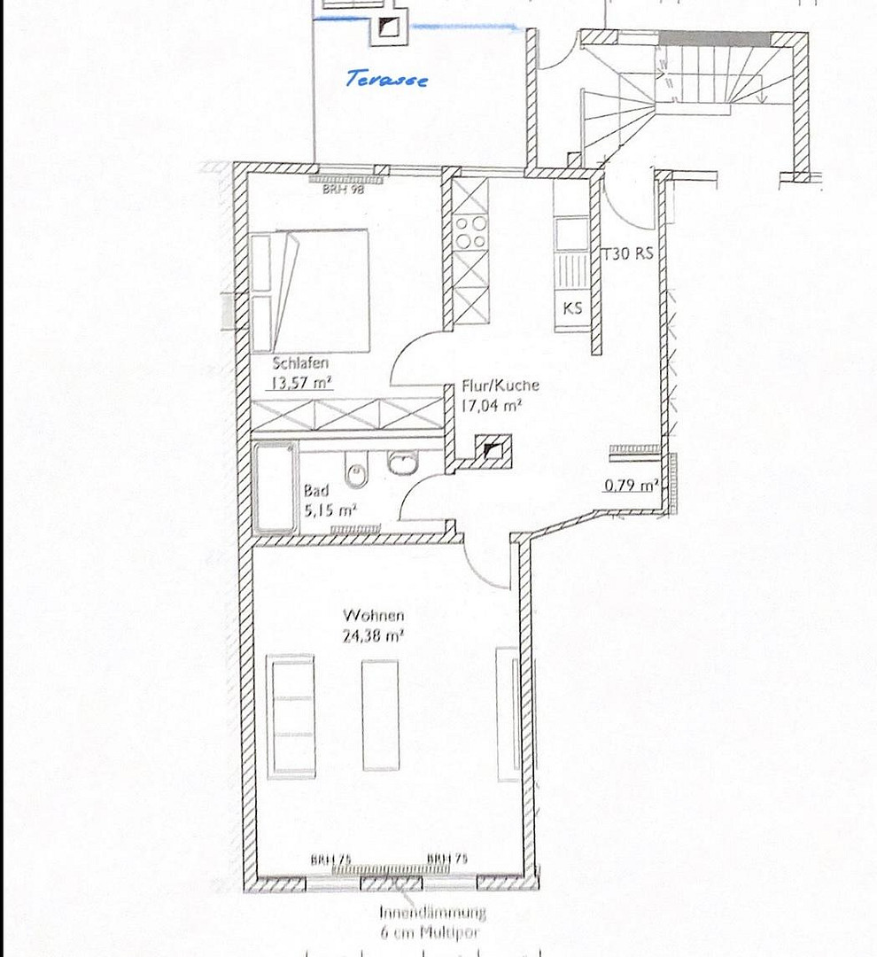
63 m²
Wohnfläche
Wohnung

Tolle, grundsanierte 2 - Zimmer - Wohnung ,
Großzügige Räume mit hohen Decken und viel Licht.
Innen liegendes Bad mit Design Vinylbelag, und grosser Dusche.
Stilvoll saniert : mit Innendämmung, Lehmputz und neuen Holzsprossen Fenstern

Die Wohnung befindet sich im 1.OG eines Wohn- und Geschäftshauses und hat nach Süd - Westen eine sonnige Dachterrasse .
Bei der Sanierung wurde Wert auf die Verwendung natürlicher Baustoffe gelegt.
Es wird mit Fernwärme geheizt und ein Glasfaser Anschluss ist vorhanden.

Interessieren Sie sich für diese Wohnung?

Objekt-Nr
OM-421024
Objektart
Wohnung
Objekttyp
Wohnung
Übernahme ab
1. Juni 2026

Miete & Nebenkosten

Kaltmiete
650 € (zzgl. NK)
Heizkosten
120 €
Nebenkosten ohne Heizkosten
80 €
Summe Nebenkosten/Heizkosten
200 €
Mietsicherheit
1.950 €

Einzelheiten

Zustand
gepflegt
Denkmalschutzobjekt
Ja
Anzahl Etagen
2
Stockwerk
1. OG
Badezimmer (Anzahl)
1
Schlafzimmer (Anzahl)
1
Bodenbeläge
Laminat, Vinyl / PVC
Heizung
Zentralheizung
Baujahr
1840
Ausstattung
Dachterrasse, Duschbad
Infrastruktur
Apotheke, Lebensmittel-Discount, Allgemeinmediziner, Kindergarten, Grundschule, Hauptschule, Realschule, Gymnasium, Öffentliche Verkehrsmittel

Lage

Die Lage ist hervorragend! Über einer guten Buchhandlung gelegen, gleich um die Ecke einer Bäckerei mit Café, Drogerie, Schuster, Eisdiele, hochwertiges Haushaltswaren Geschäft gegenüber, Bioladen und Restaurants die Strasse hoch, Bushaltestelle schräg gegenüber.

In ca.5 min Fußweg sind Sie im Grünen. Der Mittellandkanal und der Allersee laden zu Spaziergängen, Radtouren und im Sommer zum schwimmen ein.

Lage-Check

Gastronomie
Einkaufen
Natur
Gesundheit
Kinderfreundlich
Sport
Kultur
ÖPNV
Nachtleben

Energie

0 25 50 75 100 125 150 175 200 225 ≥250
Energieeffizienzklasse
C
Energieausweistyp
Bedarfsausweis
Wesentlicher Energieträger
Fernwärme
Endenergiebedarf
79,30 kWh/(m²a)

Sonstiges

Makleranfragen unerwünscht! Nach § 7 UWG sind unaufgeforderte Kontaktaufnahmen durch Makler ohne ausdrückliche Einwilligung des Empfängers verboten!

Nachricht direkt an den Vermieter senden

Fragen zu dieser Wohnung? Interesse zeigen oder einen Besichtigungstermin vereinbaren?

Klicken Sie hier, um dem Anbieter eine Nachricht zu senden: