ohne-makler
Exposé drucken
This listing has been automatically translated.

First floor apartment in a central location in Eggstätt

83125 Eggstätt – Bayern
398.000 €
4
Room
81.76 m²
Living Area
Private offer
Apartment
Ground floor apartment

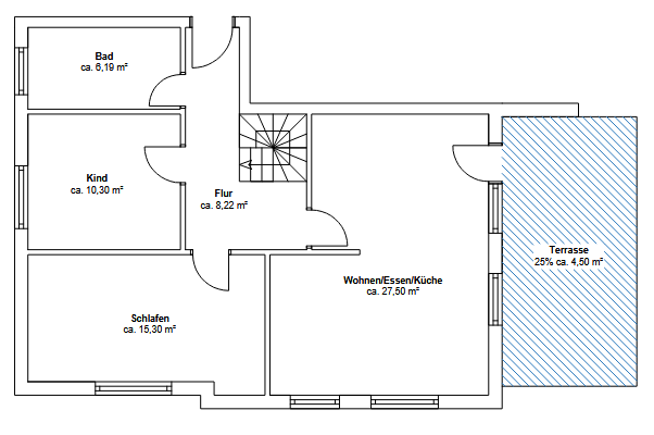
For sale is a well-maintained and high-quality 4-room ground floor apartment located in Eggstätt. One of these rooms is a bright hobby room in the basement, accessible from the ground floor via an internal staircase. The apartment features an open and well-designed layout, bright rooms, and high-quality finishes – ideal for couples, small families, or discerning individuals. The apartment includes a terrace of approximately 18 m² and a garden storage area of approximately 30 m².

The living space is approximately 82 m², with 50% of the basement hobby room and 25% of the terrace being included in the calculation (according to the German living space calculation regulations). However, the total usable space is approximately 109 m².
The building has an oil-fired central heating system.

INVESTMENT PROPERTY
The apartment has been rented since June 2024. The cold rent is €1,190 per month, plus €300 for utilities.
The annual cold rent is €14,280. This is an attractive investment property in a desirable residential area.

Are you interested in this apartment?

Object Number
OM-428933
Object Class
Apartment
Object Type
Ground floor apartment
Is occupied
Occupied
Handover from
By arrangement

Purchase price & additional costs

purchase price
398.000 €
Purchase additional costs
approx. 19,301 €
Total costs
approx. 417,300 €
HOA fee
390 €

Breakdown of Costs

Purchase price 398.000 €
Real estate transfer tax 13,930 € (3.50%)
Notary costs 3,558 € (0.89%)
Land register entry 1,813 € (0.46%)
Broker commission 0€ (0%)

* Costs for notary and land register were calculated based on the fee schedule for notaries. Assumed was the notarization of the purchase at the stated purchase price and a land charge in the amount of 80% of the purchase price. Further costs may be incurred due to activities such as land charge cancellation, notary escrow account, etc. Details of notary and land registry costs

Does this property fit my budget?

Estimated monthly rate: 1,510€

More accuracy in a few seconds:

By providing some basic information, the estimated monthly rate is calculated individually for you. For this and for all other real estate offers on ohne-makler.net

Based on equity 20% of the purchase price plus the purchase incidental costs / 10 years fixed interest rate / 2% initial repayment / Effective interest rate 3.69%

Details

Condition
Well-kept
Number of floors
2
Level
Ground floor
Usable area
109.7 m²
Bathrooms (number)
1
Bedrooms (number)
2
Number of carports
1
Number of parking lots
1
Flooring
Laminate, Tiles
Heating
Central heating
Year of construction
1994
Equipment
Terrace, Garden, Basement, Full bath, Fitted kitchen
Infrastructure
Pharmacy, Grocery discount, General practitioner, Kindergarten, Primary school, Public transport

Information on equipment

Layout and Features:
- Spacious living/dining area with direct access to the terrace.
- Open-plan kitchen area with a high-quality Nolte kitchen (2018), Bora system, and Miele appliances – included in the purchase price.
- Two well-proportioned bedrooms, plus an additional room in the basement (with a skylight and radiator).
- Modernized bathroom (partially renovated in 2024).
- Underfloor heating on the ground floor.
- Flooring: tiles and laminate.
- Basement (direct access from the apartment via stairs, and from the outside via the communal staircase).
- Carport and parking space.

Additional Features:
- Washing machine connection in the bathroom.
- Private storage room (approx. 10 m²).
- Communal bicycle cellar.
- Drying room.

Location

The apartment is located in a central, quiet residential area of Eggstätt, on the edge of the Eggstätt-Hemhof lakes nature reserve. A supermarket, pharmacy, doctors, kindergartens, primary school, and restaurants are all within walking distance. It offers a high quality of life with its lakes, nature, and active community life.

Location Check

Nature
Child Friendliness
Health
Eating Out
Sports
Shopping
Culture
Nightlife
Public Transport

Energy

0 50 100 150 200 250 300 350 400 ≥450
Energy certificate type
Demand certificate
Main energy source
Oil
Final energy demand
117.90 kWh/(m²a)

Miscellaneous

The photos are from before the current tenants moved in.
To protect privacy, no recent interior photos have been published.

Broker inquiries not welcome! According to § 7 UWG, unsolicited contact by brokers without the express consent of the recipient is prohibited!

Send a message directly to the seller

Questions about this apartment? Show interest or arrange a viewing appointment?

Click here to send a message to the provider:

Offer from: Stefan Aumüller