ohne-makler

Stuck, Charme & Bergmannkiez: elegante Altbauwohnung mit 3-Zimmer-Potenzial! Provisionsfrei!

Fidicinstr. 30, 10965 Berlin (Kreuzberg)
335.000 €
2
Zimmer
58,47 m²
Wohnfläche
Wohnung

Das repräsentative Eckhaus befindet sich in Bestlage im Bergmannkiez und ist Teil des denkmalgeschützten Bauensembles Chamissoplatz. Errichtet im Jahr 1890 von Ludwig Dolz, beeindruckt das Gebäude durch seine historische Gründerzeitarchitektur mit einer reich verzierten Fassade, großzügigen Deckenhöhen und zahlreichen original erhaltenen Altbaudetails wie kunstvollen Stuckverzierungen und klassischen Doppelkastenfenstern.
Das Haus verfügt über zwei Eingänge Fedicinstr. 30 und Kloedenstr. 4, sowie ein beeindruckendes historisches Foyer mit stilvollen Treppenhäusern mit hölzernen Handläufen.

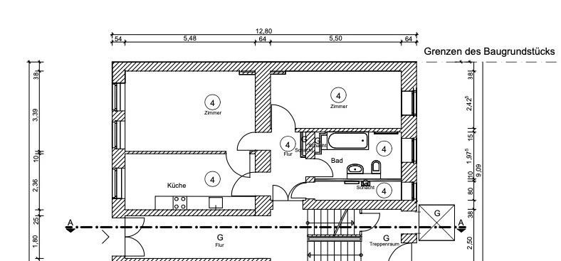
Diese schöne Wohnung mit ca. 58,47 m2 Wohnfläche befindet sich im Erdgeschoss mit Eingang in der Fidicinstraße 30 und überzeugt mit ihrem klassischen Altbaucharme.
Beim Betreten durch die eindrucksvolle historische Eingangstür öffnet sich eine zentrale Diele, von der aus alle Räume direkt und effizient erschlossen werden – ein durchdachter Grundriss, der Funktionalität und Großzügigkeit harmonisch vereint.
Besonderes Highlight ist der original erhaltene Stuck im großen Zimmer – ein beeindruckendes Zeugnis historischer Handwerkskunst, das der Wohnung außergewöhnlichen Charakter und stilvolle Atmosphäre verleiht.
Die beindruckende Deckenhöhe von ca. 3,30m unterstreicht den Altbaucharme zusätzlich und schafft ein großzügiges, offenes Raumgefühl.
Die Wohnung verfügt zudem über eine separate Küche, ein geräumiges und helles Badezimmer sowie eine praktische Abstellkammer mit Waschmaschinenanschluss.

++­+ Diese Wohnung ist ein Raumwunder und bietet ungeahnte Möglichkeiten der Raumgestaltung! Wir helfen Ihnen gern dabei! +++

Trotz der zentralen Lage bietet die Wohnung eine angenehme Ruhe. Der großzügige Innenhof ist funktional gestaltet und verfügt über Sitzbänke, einen Sandkasten und überdachte Fahrradständer. Dank des Denkmalschutzes bleibt der einzigartige Altbaucharakter bewahrt und sorgt für eine geschützte Wohnkultur mit besonderem Flair.

Interessieren Sie sich für diese Wohnung?

Objekt-Nr
OM-367895
Objektart
Wohnung
Objekttyp
Wohnung
Aktuelle Nutzung
Nicht vermietet
Übernahme ab
sofort

Kaufpreis & Nebenkosten

Kaufpreis
335.000 €
Kaufnebenkosten
ca. 24.854 €
Gesamtkosten
ca. 359.854 €
Hausgeld mtl.
203 €

Aufschlüsselung der Kosten

Kaufpreis 335.000 €
Grunderwerbsteuer 20.100 € (6,00%)
Notarkosten 3.142 € (0,94%)
Grundbucheintrag 1.613 € (0,48%)
Maklerprovision 0€ (0%)

* Kosten für Notar und Grundbuch wurden berechnet basierend auf der Gebührenordnung für Notare. Angenommen wurde die Beurkundung des Kaufs zum angegebenem Kaufpreis sowie eine Grundschuldbestellung i.H.v. 80% des Kaufpreises. Durch Tätigkeiten wie Grundschuldlöschung, Notaranderkonto usw. können weitere Kosten entstehen. Details zu Notar- und Grundbuchkosten

Passt diese Immobilie zu meinem Budget?

Geschätzte Monatsrate: 1.282€

Mehr Genauigkeit in wenigen Sekunden:

Durch die Angabe einiger Basisinformationen wird die geschätzte Monatsrate individuell für Sie berechnet. Für dieses und für alle weiteren Immobilienangebote auf ohne-makler.net

Basierend auf Eigenkapital 20% vom Kaufpreis zzgl. der Kaufnebenkosten / 10 Jahren Sollzinsbindung / 2% anfängliche Tilgung / Effektivzins 3,74%

Einzelheiten

Denkmalschutzobjekt
Ja
Anzahl Etagen
5
Stockwerk
Erdgeschoss
Badezimmer (Anzahl)
1
Schlafzimmer (Anzahl)
2
Bodenbeläge
Sonstiges (s. Text)
Heizung
Zentralheizung
Baujahr
1901
Ausstattung
Keller, Vollbad
Infrastruktur
Apotheke, Lebensmittel-Discount, Allgemeinmediziner, Kindergarten, Grundschule, Realschule, Gymnasium, Gesamtschule, Öffentliche Verkehrsmittel

Angaben zur Ausstattung

+ "Durchgestecktes" Wohnen sorgt für optimale Lichtverhältnisse
+ Durchdachter Grundriss mit klarer Raumaufteilung und zentraler Diele
+ Aufwendig verzierte Decken mit original erhaltenem Stuck
+ Großzügige Deckenhöhe ca. 3,30 m
+ Historischer Holzdielenboden in der gesamten Wohnung (außer Bad)
+ Originale Doppelkastenfenster mit klassischen Griffoliven zur Straßenseite
+ Außenrolläden
+ Alte Kassettentüren mit stilvollen Zargen und originalen Beschlägen
+ Großes, modernes Tageslichtbad mit Fenster
+ Handtuchheizkörper
+ Praktische Abstellkammer mit Waschmaschinenanschluss
+ Gegensprechanlage
+ Eigenes Kellerabteil für zusätzlichen Stauraum

+ Die Wohnung wurde ca. 2013 umfassend saniert (inklusive Elektrik, Rohrleitungen, Badezimmer, gespachtelte Wände)

Lage

Kreuzberg gehört zu den vielseitigsten Bezirken Berlins. Hier kommen Menschen aus der ganzen Welt zusammen: die jungen Wilden aus Kunst und Kultur, die digitale Bohème der Start-up Szene sowie Entrepreneure jeden Alters mit internationalem Background.
Dieser Mix der verschiedensten Strömungen macht Kreuzberg zum angesagten Place to be der Stadt.
Mittendrin: Viktoriapark (ca. 1,5 km von Kloedenstr. entfernt) und das Tempelhofer Feld (ca. 900 m von Kloedenstr. entfernt), die größte innerstädtische Freizeitfläche der Welt – ideal, um den Kopf in Windeseile freizubekommen vom Buzz der City. Direkt daran taucht man ein in den Bergmannkiez, eine der beliebtesten Lagen Kreuzbergs mit einer weitgehend intakten Gründerzeitbebauung.
Im direkten Wohnumfeld bieten schöne Cafés, trendige Bars, Top-Restaurants, typische Berliner Eckkneipen, originelle Läden für den täglichen Bedarf, diverse Supermärkte und die Marheineke-Markthalle viel Abwechslung. Im Sommer finden im Kiez verschiedene Straßenfeste statt, darunter das Bergmannstraßenfest, das Jazz-Liebhaber anzieht. Auch kleinere Flohmärkte und Kulturveranstaltungen sorgen für eine lebendige Atmosphäre.

Die ÖPNV-Anbindung ist durch die Nähe zu mehreren U-Bahn-Stationen (U-Bahnhof Mehringdamm U6 und U 7) und Buslinien ( 140, M19, N7) hervorragend. Auch Radfahrer sind bestens angebunden. Bis zum Gendarmenmarkt zum Beispiel sind es gerade mal 2,7 Kilometer, meist auf breitem Radweg.

Lage-Check

Gastronomie
50m
Einkaufen
50m
Kultur
150m
Sport
100m
Nachtleben
100m
ÖPNV
200m
Gesundheit
300m
Kinderfreundlich
50m
Natur
150m

Energie

Energieeffizienzklasse
D
Energieausweistyp
Bedarfsausweis
Wesentlicher Energieträger
Gas
Endenergiebedarf
121,40 kWh/(m²a)

PDF

Sonstiges

Sukzessive Sanierung des Hauses 2013-2023:

+ Fassade und Brennwerttherme: Sanierung und Modernisierung ca. 2023
+ Dachgeschossausbau: ca. 2018
+ Sanierung der Stränge, Hauselektrik, Keller und Innenhof: ca. 2014/2015
+ Es stehen keine Instandhaltungsmaßnahmen/Sonde­rumlagen an.

Für weitere Informationen und eine Besichtigung stehen wir Ihnen gerne zur Verfügung:

Angelika Lehmann & Anna Donets
0172 -391 99 99 & 0172 - 304 53 60

+ Der Verkauf erfolgt ohne zusätzliche Käuferprovision
++ Wir weisen darauf hin, dass die von uns zur Verfügung gestellten Objektinformationen, Unterlagen, etc. vom Verkäufer stammen. Eine Haftung für die Vollständigkeit oder Richtigkeit der Angaben können wir daher nicht übernehmen. Gerne unterstützen wir unseren Kund/innen dabei, die darin enthaltenen Objektinformationen und Angaben auf ihre Richtigkeit hin zu überprüfen. Alle Immobilienangebote sind freibleibend und vorbehaltlich Irrtümer, Zwischenverkauf- oder sonstiger Zwischenverwertung und Änderungen.

Makleranfragen unerwünscht! Nach § 7 UWG sind unaufgeforderte Kontaktaufnahmen durch Makler ohne ausdrückliche Einwilligung des Empfängers verboten!

Nachricht direkt an den Verkäufer senden

Fragen zu dieser Wohnung? Interesse zeigen oder einen Besichtigungstermin vereinbaren?

Klicken Sie hier, um dem Anbieter eine Nachricht zu senden:

Mobiltelefon: 0172 3919999