ohne-makler
Exposé drucken
This listing has been automatically translated.

Quiet apartment in Bogenhausen-Johanneskirchen with a large, sunny west-facing balcony.

Preziosastraße 27, 81927 München (Johanneskirchen) – Bayern
438.000 €
2
Room
57.30 m²
Living Area
Private offer
Apartment

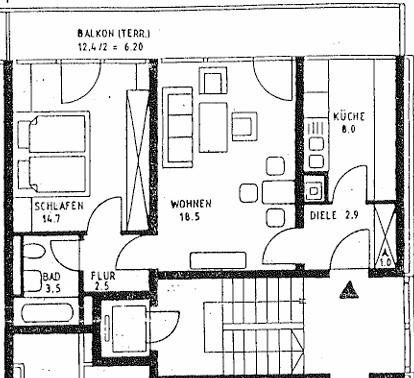
This bright and attractive 2-room apartment, located on the 3rd floor of a well-maintained apartment building with an elevator, impresses with its excellent layout, its bright west-facing orientation, and its quiet and desirable location in Munich-Bogenhausen. With approximately 57.3 square meters of living space, it offers ideal conditions for owner-occupiers, couples, or singles. The spacious living room, with direct access to the sunny 12 square meter west-facing balcony overlooking greenery, is the heart of the apartment and, together with the bedroom, which also faces west towards the quiet green space and has direct access to the balcony, creates a particularly friendly and light-filled atmosphere. The existing fitted kitchen, a modern bathroom with a bathtub and shower, and a practical built-in closet in the hallway, highlight the functional and well-thought-out layout. There is a washing machine connection in the kitchen. The apartment is in good condition. A private cellar also forms part of the offer and provides additional comfort and practical storage space. An outdoor parking space, secured by a gate, can also be purchased or rented. The purchase price for this attractive apartment is €445,000 (negotiable). No real estate agent fees. The apartment is managed by a property management company, and the monthly service charge is €240. Due to its desirable location in Munich-Bogenhausen, the well-thought-out layout, and its suitability for both owner-occupiers and investors, this property represents a good opportunity. The stated price is a starting point for negotiation, offering qualified and serious buyers a fair and market-appropriate purchase option. Offers will be gladly considered. If you are interested or have any questions about the apartment, please feel free to contact me. I would be happy to arrange a personal viewing, and I am available to provide further information at any time.

Are you interested in this apartment?

Object Number
OM-359021
Object Class
Apartment
Object Type
Apartment
Is occupied
Vacant
Handover from
By arrangement

Purchase price & additional costs

purchase price
438.000 €
Purchase additional costs
approx. 21,173 €
Total costs
approx. 459,173 €
Purchase price garage/parking space
10,000 €
HOA fee
242 €

Breakdown of Costs

Purchase price 438.000 €
Real estate transfer tax 15,330 € (3.50%)
Notary costs 3,856 € (0.88%)
Land register entry 1,988 € (0.45%)
Broker commission 0€ (0%)

* Costs for notary and land register were calculated based on the fee schedule for notaries. Assumed was the notarization of the purchase at the stated purchase price and a land charge in the amount of 80% of the purchase price. Further costs may be incurred due to activities such as land charge cancellation, notary escrow account, etc. Details of notary and land registry costs

Does this property fit my budget?

Estimated monthly rate: 1,661€

More accuracy in a few seconds:

By providing some basic information, the estimated monthly rate is calculated individually for you. For this and for all other real estate offers on ohne-makler.net

Based on equity 20% of the purchase price plus the purchase incidental costs / 10 years fixed interest rate / 2% initial repayment / Effective interest rate 3.69%

Details

Condition
Renovated
Number of floors
8
Level
3rd floor
Bathrooms (number)
1
Bedrooms (number)
1
Number of parking lots
1
Flooring
Tiles
Heating
Underfloor heating
Year of construction
1969
Equipment
Balcony, Basement, Elevator, Full bath, Shower bath, Fitted kitchen
Infrastructure
Pharmacy, Grocery discount, General practitioner, Kindergarten, Middle school, High school, Public transport

Location

The apartment is located in Altbogenhausen, in the Johanneskirchen district, a popular and quiet residential area with a good mix of green spaces and urban amenities. It offers excellent access to public transportation, connecting to the city center, as well as all shopping facilities, schools, nurseries, recreational activities, and medical services.

Specific locations and distances:
- Bus stop "Bichlhofweg" – Bus line 154, approximately 6 minutes' walk away.
- Tram stop "Fritz-Meyer-Weg" – approximately 5 minutes' walk away.
- S-Bahn station Johanneskirchen (airport line) – approximately 8 minutes' walk away.
- U-Bahn station Arabellapark (U4) – easily accessible by bus or tram.
- Supermarkets (REWE and EDEKA) – approximately 6 minutes' walk away.
- Other shopping facilities, banks, and restaurants are within walking distance.
- Northern part of the English Garden – 1.5 km away.
(Note: Bus line 154 runs towards Nordbad and directly to the "Chinese Tower.")

Location Check

Sports
100m
Shopping
150m
Public Transport
350m
Child Friendliness
100m
Eating Out
400m
Health
450m
Culture
1000m
Nature
50m
Nightlife
400m

Energy

Energy efficiency class
D
Energy certificate type
Demand certificate
Main energy source
District heating
Final energy demand
106.00 kWh/(m²a)

Miscellaneous

Broker inquiries not welcome! According to § 7 UWG, unsolicited contact by brokers without the express consent of the recipient is prohibited!

Send a message directly to the seller

Questions about this apartment? Show interest or arrange a viewing appointment?

Click here to send a message to the provider: