ohne-makler
Exposé drucken
This listing has been automatically translated.

Family-friendly detached house on the Rhine.

Fritz-Henkel-Str. 18, 53572 Unkel – Rheinland-Pfalz
695.000 €
8
Room
196 m²
Living Area
747 m²
Plot Area
Private offer
House
Single-family house

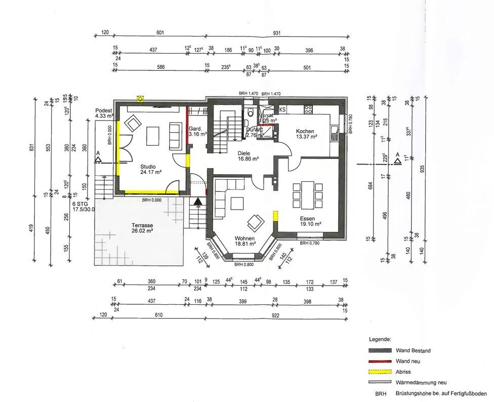
Discover your new home! This charming detached house, built in 1939, was comprehensively modernized and renovated in 2016 with great care. It now combines classic character with modern living comfort. With approximately 200 square meters of living space and eight rooms, you'll find plenty of space for a comfortable family life. The three floors offer bright and inviting living areas. On the ground floor, you'll find a hallway and cloakroom, a spacious kitchen with a practical pantry, a dining room and living room, and a guest shower room. The extension, built in 1959, features a separate, light-filled office/garden room. This area is ideal for self-employed individuals or as a quiet home office. Upstairs, you'll find a cozy master bedroom, two further versatile rooms, and a daylight bathroom with a shower. The attic, renovated in 2016, offers two additional rooms and a utility room. A modern hybrid air-water heat pump from 2016 provides comfortable warmth. The lovingly maintained garden invites you to relax, play, and spend time outdoors. A garage and a car parking space, a spacious basement with approximately 67 square meters of usable space, and the approximately 747 square meter plot complete this attractive offering. The quiet location, close to the Rhine, makes this house a special place – ideal for families seeking a beautiful and relaxed home.

Are you interested in this house?

Object Number
OM-447955
Object Class
House
Object Type
Single-family house
Is occupied
Vacant
Handover from
By arrangement

Purchase price & additional costs

purchase price
695.000 €
Purchase additional costs
approx. 43,511 €
Total costs
approx. 738,510 €

Breakdown of Costs

Purchase price 695.000 €
Real estate transfer tax 34,750 € (5.00%)
Notary costs 5,783 € (0.83%)
Land register entry 2,978 € (0.43%)
Broker commission 0€ (0%)

* Costs for notary and land register were calculated based on the fee schedule for notaries. Assumed was the notarization of the purchase at the stated purchase price and a land charge in the amount of 80% of the purchase price. Further costs may be incurred due to activities such as land charge cancellation, notary escrow account, etc. Details of notary and land registry costs

Does this property fit my budget?

Estimated monthly rate: 2,572€

More accuracy in a few seconds:

By providing some basic information, the estimated monthly rate is calculated individually for you. For this and for all other real estate offers on ohne-makler.net

Based on equity 20% of the purchase price plus the purchase incidental costs / 10 years fixed interest rate / 2% initial repayment / Effective interest rate 3.55%

Details

Condition
Rehabilitated
Number of floors
3
Usable area
67 m²
Bathrooms (number)
2
Bedrooms (number)
5
Number of garages
1
Number of parking lots
1
Flooring
Other (see text)
Heating
Central heating
Year of construction
1939
Equipment
Balcony, Terrace, Garden, Basement, Shower bath, Fitted kitchen, Guest toilet
Infrastructure
Pharmacy, Grocery discount, General practitioner, Kindergarten, Primary school, Secondary school, Middle school, Comprehensive school, Public transport

Information on equipment

The property offers the following room layout:

Ground Floor:
Large entrance hall
Coat closet
Living room
Dining room
Kitchen with pantry
Guest toilet with shower
Office/sunroom (extension)

First Floor:
Master bedroom
Children's room
Children's room
Bathroom with shower, toilet, sink, and window

Attic:
2 bedrooms
Heating room

Basement:
Hallway
3.5 basement rooms

All living areas have wooden floorboards.
The bathrooms and the sunroom are tiled.

Location

This detached single-family home is located in one of the most desirable residential areas of the idyllic town of Unkel, just a few steps from the Rhine River. The area is characterized by well-maintained houses, plenty of green space, and a friendly neighborhood, making it a particularly pleasant place to live for families with children. The nearby Rhine promenade offers opportunities for relaxing walks, bike rides, and enjoyable time spent outdoors. Unkel boasts excellent infrastructure: shops for daily necessities, including supermarkets, bakeries, pharmacies, and doctors, are easily accessible. Families also benefit from a good range of educational facilities, including kindergartens, a primary school, and secondary schools in the area. The town also has a lot to offer in terms of culture, with a music school, a library, and a variety of events in the town center. The historic town center is charming, with a selection of cozy restaurants, cafes, and wine bars offering a diverse culinary experience, from regional to Mediterranean cuisine. There are numerous opportunities for leisure and sports, including sports clubs, a soccer field, and the Ilse Bagel Park, located just 100 meters away, which features a playground, a fitness course, and a boules court. The transportation links are also excellent: the train station is conveniently located just a 5-minute walk away and offers direct connections to Bonn, Cologne, and Koblenz. By car, you can reach Bonn in approximately 25 minutes, Cologne and Neuwied in around 40 minutes. The nearby B42 highway also provides quick access.

Location Check

Nature
50m
Health
150m
Child Friendliness
200m
Eating Out
450m
Sports
700m
Culture
500m
Shopping
250m
Nightlife
450m
Public Transport
200m

Energy

0 25 50 75 100 125 150 175 200 225 ≥250
Energy efficiency class
A
Energy certificate type
Demand certificate
Main energy source
Gas
Final energy demand
45.00 kWh/(m²a)

Miscellaneous

Broker inquiries not welcome! According to § 7 UWG, unsolicited contact by brokers without the express consent of the recipient is prohibited!

Send a message directly to the seller

Questions about this house? Show interest or arrange a viewing appointment?

Click here to send a message to the provider:

Offer from: Ulrike Winter-Melms