ohne-makler
Exposé drucken
This listing has been automatically translated.

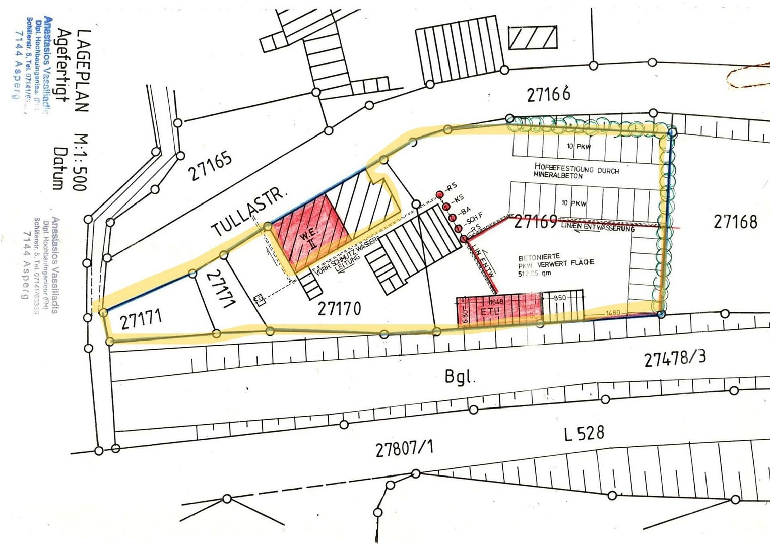
Certified car recycling facility for rent.

Tullastr. 7, 75031 Eppingen – Baden-Württemberg
5.500 €
Cold rent (plus additional costs)
3,158 m²
Plot Area
Production / warehouse / commercial hall
Storage

Description: For rent is a certified car recycling facility, compliant with the regulations for the disposal of old vehicles and holding a "BImSch" (Federal Immission Control Act) permit. The facility consists of:

* Open outdoor area
* Workshop with 3 electric roller doors
* Area for dismantling
* Area for dewatering/oil separation
* Office
* Various storage areas for used car parts from different manufacturers.

Are you interested in this offer?

Object Number
OM-435177
Object Class
Production / warehouse / commercial hall
Object Type
Storage
Handover from
By arrangement

Rent & additional costs

Cold rent
5.500 € (plus additional costs)
Deposit
16,500 €

Details

Condition
No information
Number of floors
1
Level
Ground floor
Total area
3158 m²
Warehouse/Production area
335 m²
Open space
2711 m²
Number of garages
3
Number of carports
1
Heating
Other
Year of construction
1900
Equipment
Fitted kitchen, Guest toilet, Barrier-free
Infrastructure
Pharmacy, Grocery discount, General practitioner, Primary school, Secondary school, Middle school, High school, Comprehensive school, Public transport

Information on equipment

Key features of the property: A forklift, a workshop with tools, a variety of car parts from different manufacturers, and office furniture can be included.

Location

Location of the Property: The commercial space is located in a well-connected area within the western industrial zone of Eppingen. It's just a few minutes by car to the B-293 road. An S-Bahn (suburban train) station is located just a few meters away. In the immediate vicinity, in addition to small and medium-sized businesses, there are also Lidl and EDEKA supermarkets, a bakery, and a DM drugstore. Eppingen itself is located in the Heilbronn-Franken region, approximately 22 km west of Heilbronn and approximately 41 km northeast of Karlsruhe.

Other:
- Established customer base
** The area descriptions provided here have been carefully researched, but do not claim to be exhaustive and are provided solely for informational purposes and without obligation. Changes are subject to alteration.

Location Check

Sports
850m
Child Friendliness
200m
Shopping
250m
Health
550m
Eating Out
450m
Nature
650m
Culture
800m
Public Transport
450m
Nightlife
450m

Miscellaneous

First Name: Can
Last Name: Kaygun
Phone Number: +4915116566887
Address: Tullastraße 7,
75031 Eppingen

Broker inquiries not welcome! According to § 7 UWG, unsolicited contact by brokers without the express consent of the recipient is prohibited!

Send a message directly to the landlord

Questions about the object? Show interest or arrange a viewing appointment?

Click here to send a message to the provider:

Offer from: Can Kaygun