ohne-makler
Exposé drucken
This listing has been automatically translated.

Bungalow with double garage - Construction shell completed - KfW loan available at an interest rate of 1.00% per annum.

Marderweg 13, 92699 Irchenrieth – Bayern
528.000 €
4
Room
135 m²
Living Area
567 m²
Plot Area
House
Bungalow

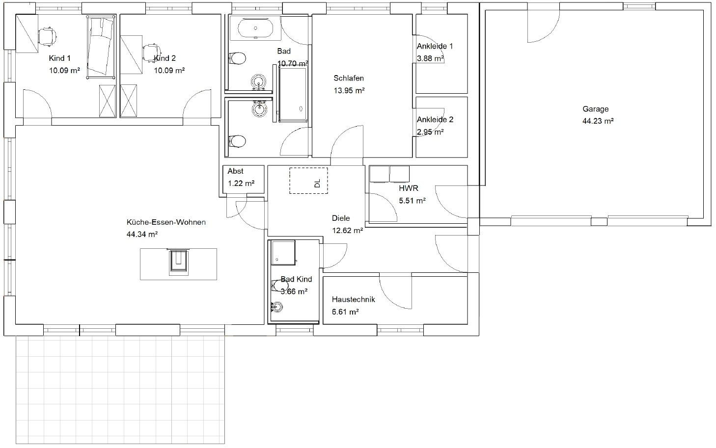
The structural framework of the solid-built bungalow is already complete – move in and feel at home as early as August 2026! The sustainable brick construction with monolithic walls guarantees long-lasting quality: on the exterior, low-maintenance, breathable lime-cement plaster protects the facade, while on the interior, lime plaster creates a healthy and pleasant living environment. The thoughtfully designed, single-level living concept is impressive with an open living, dining, and cooking area that connects directly to the inviting entrance area. The modern kitchen, prepared for a kitchen island, features a practical storage room, while the utility room connects the house directly to the double garage – for particularly short distances in everyday life. The layout offers two flexible rooms, as well as a generous master suite with a bedroom, walk-in closet, and private bathroom. A second guest bathroom is centrally located in the house. The south-facing terrace, with high-quality aluminum roofing, extends the living space outdoors – ideal for sunny days and convivial evenings. The features include a high-performance photovoltaic system (approx. With a solar panel system (8.19 kWp) and a modern air-to-water heat pump, this property offers energy-efficient living. The interior finishes – from flooring to sanitary fixtures and interior doors – can be customized to your preferences. Sample requests can still be accommodated until the end of April. Enjoy a quick move-in, modern technology, and thoughtful design – your new home awaits, perfectly combining living comfort, sustainability, and quality of life!

Are you looking for a more compact living space with the same high-quality solid construction? Starting in April, semi-detached houses will be built in Irchenrieth – from €449,000. Ready for occupancy by the end of 2026. Pre-registrations are now possible.

Are you interested in this house?

Object Number
OM-409554
Object Class
House
Object Type
Bungalow
Is occupied
Vacant
Handover from
Aug. 31, 2026

Purchase price & additional costs

purchase price
528.000 €
Purchase additional costs
approx. 25,455 €
Total costs
approx. 553,454 €

Breakdown of Costs

Purchase price 528.000 €
Real estate transfer tax 18,480 € (3.50%)
Notary costs 4,617 € (0.87%)
Land register entry 2,358 € (0.45%)
Broker commission 0€ (0%)

* Costs for notary and land register were calculated based on the fee schedule for notaries. Assumed was the notarization of the purchase at the stated purchase price and a land charge in the amount of 80% of the purchase price. Further costs may be incurred due to activities such as land charge cancellation, notary escrow account, etc. Details of notary and land registry costs

Does this property fit my budget?

Estimated monthly rate: 1,954€

More accuracy in a few seconds:

By providing some basic information, the estimated monthly rate is calculated individually for you. For this and for all other real estate offers on ohne-makler.net

Based on equity 20% of the purchase price plus the purchase incidental costs / 10 years fixed interest rate / 2% initial repayment / Effective interest rate 3.55%

Details

Condition
First occupancy
Number of floors
1
Bathrooms (number)
2
Bedrooms (number)
3
Number of garages
2
Flooring
Parquet, Tiles
Heating
Underfloor heating
Year of construction
2026
Equipment
Terrace, Garden, Full bath, Shower bath, Guest toilet, Barrier-free
Infrastructure
Grocery discount, General practitioner, Kindergarten, Public transport

Information on equipment

1. Room and Living Quality
- Ceiling height: more than 2.80 m
- Underfloor heating throughout the house
- Parquet flooring in the living area
- Villeroy & Boch tiles in the bathrooms and utility areas
- Barrier-free access

2. Windows, Doors, and Blinds
- Two large sliding doors facing south and west, 2.50 m high
- Two additional, threshold-free, floor-to-ceiling window doors
- Exclusively electric roller shutters with aluminum casing
- Front door, 2.30 m high

3. Heating, Energy, and Technology
- Bosch air-to-water heat pump as the central heating system
- 8.19 kWp photovoltaic system with Lehmann metal tiles
- Multimedia distribution system with LAN connection in every living space
- Video intercom system with app and remote access
- LED ceiling lights in almost all rooms, including the garage

4. Sanitary Fixtures
- Sanitary fixtures by Grohe
- Switch and socket program by Busch-Jaeger

5. Exterior Area and Garage
- Double garage with two sectional doors
- Aluminum terrace covering
- Paving stones and planting beds, with granite edging
- Mailbox integrated into the facade
- Landscaped garden area

6. Other / Utility Rooms
- Unheated attic as storage space with a large, thermally insulated pull-down ladder
- Individual selection options within the scope of the material selection (e.g., flooring up to 50 €/m² list price)

Key Features:
- Living space: approximately 135 m²
- Land: approximately 567 m²
- 3 bedrooms
- Walk-in closet: 1
- Bathrooms: 1 en-suite bathroom + guest bathroom
- Solid double garage
- Ready for occupancy: July 2026

Location

The bungalow is being built in the attractive new development area of Gleitsweg in Irchenrieth. The municipality of Irchenrieth is known for its excellent administration and solid financial foundation. The location offers convenient access to shops, schools, nurseries, and medical facilities. At the same time, its proximity to Weiden i.d.OPf. and the A6 motorway provides quick access to regional employers and surrounding towns.

The area is characterized by well-maintained residential buildings, plenty of green space, and a quiet neighborhood – ideal for anyone looking for a comfortable, ground-floor living concept.

Location Check

Nature
200m
Child Friendliness
50m
Sports
300m
Health
4.2km
Shopping
200m
Eating Out
350m
Nightlife
2.3km
Culture
5.8km
Public Transport
250m

Energy

0 25 50 75 100 125 150 175 200 225 ≥250
Energy efficiency class
A+
Energy certificate type
Demand certificate
Main energy source
Air/water heat
Final energy demand
23.60 kWh/(m²a)

Miscellaneous

JOWI Immo GmbH
Registered office and registration: Nuremberg, AG Nuremberg HRB 44975

represented by its managing director
Josef H. Sechser M. Sc. Real Estate

Ostendstraße 161, 90482 Nuremberg
Phone +49 172 82 56 401
contact(at)jowi-immo.de
­
Permission according to § 34c paragraph 1 sentence 1 number 3a Gewerbeordnung (property developer)
Supervisory authority: Chamber of Industry and Commerce for Munich and Upper Bavaria, Max-Joseph-Str. 2, 80333 Munich

Broker inquiries not welcome! According to § 7 UWG, unsolicited contact by brokers without the express consent of the recipient is prohibited!

Send a message directly to the seller

Questions about this house? Show interest or arrange a viewing appointment?

Click here to send a message to the provider:

Offer from: JOWI Immo GmbH