ohne-makler
Exposé drucken
This listing has been automatically translated.

Charming half-timbered house with thatched roof

21376 Salzhausen (Luhmühlen) – Niedersachsen
630.000 €
4
Room
170 m²
Living Area
943 m²
Plot Area
Private offer
House
Single-family house

This charming thatched-roof house is located in the heart of Luhmühlen.

In 2007, the house was converted from a semi-detached house to a detached house.
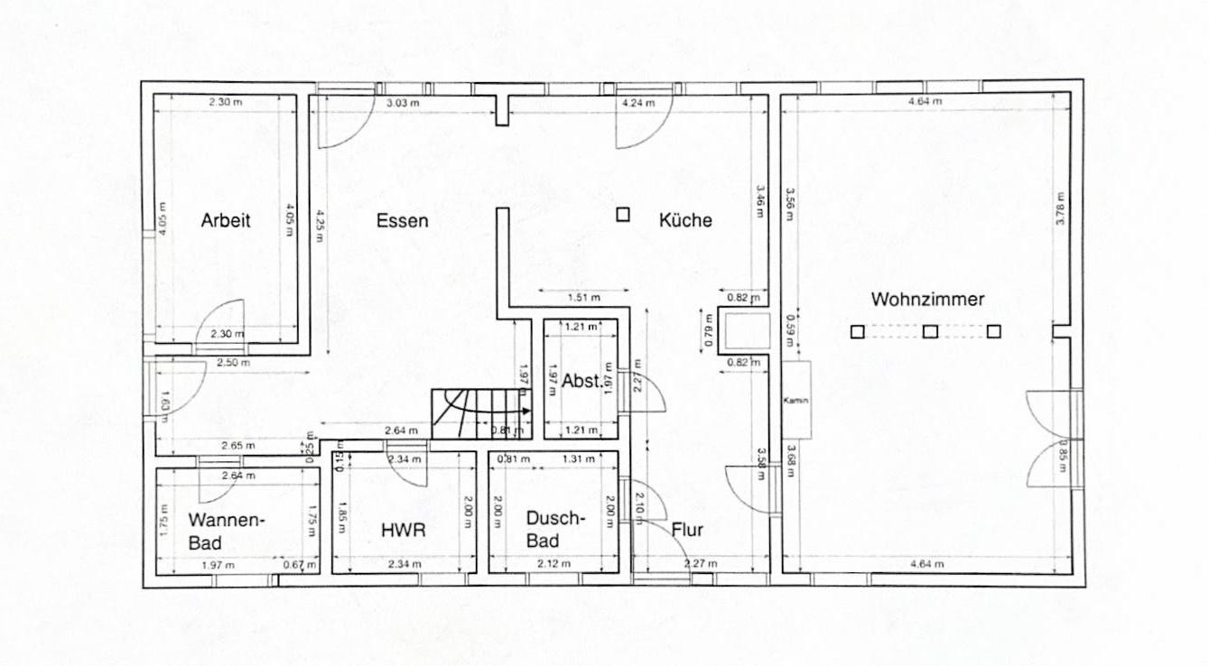
The floor plan was changed and large, family-friendly rooms were created.

At the center of the house is the heart of the home, the large eat-in kitchen.
The lime green country-style fitted kitchen was newly installed in 2018 and offers plenty of storage space.
From here, you have direct access to the south-facing terrace and the beautiful garden.

The kitchen is equipped with an induction hob, dishwasher and fridge.
The utility room offers plenty of space for a freezer, washing machine and dryer.

The first floor has beautiful wide oak plank flooring, with the exception of the bathrooms and living room (tiles and laminate).
There is underfloor heating throughout the first floor, except in the living room.

The shower room and the bath are bright and modern.

The large, cozy living room with stove is located on the gable end facing west.
Some floor-to-ceiling windows have been installed here.

Another small room, currently a dressing room, is located to the east.

The upper floor is reached via a beautiful wooden staircase.
There are two more spacious rooms and a large hallway.
Radiators are installed on the upper floor.

There is a wooden sauna house in the garden, which was built about 7 years ago.

The entire property is fenced.
There is a lightning conductor on the roof.

At the beginning of 2023, the house was retrofitted with an alarm system.
A new gas heating system was installed at the end of 2023.
A large new carport was built at the beginning of 2024, with 3 parking spaces, a small room for garbage cans and a large room for garden tools and garden furniture.
The thatched roof was cleaned and repaired at the beginning of 2025.

The house is not a listed building.

Are you interested in this house?

Object Number
OM-377010
Object Class
House
Object Type
Single-family house
Is occupied
Vacant
Handover from
Nov. 15, 2025

Purchase price & additional costs

purchase price
630.000 €
Purchase additional costs
approx. 39,680 €
Total costs
approx. 669,680 €

Breakdown of Costs

Purchase price 630.000 €
Real estate transfer tax 31,500 € (5.00%)
Notary costs 5,403 € (0.86%)
Land register entry 2,778 € (0.44%)
Broker commission 0€ (0%)

* Costs for notary and land register were calculated based on the fee schedule for notaries. Assumed was the notarization of the purchase at the stated purchase price and a land charge in the amount of 80% of the purchase price. Further costs may be incurred due to activities such as land charge cancellation, notary escrow account, etc. Details of notary and land registry costs

Does this property fit my budget?

Estimated monthly rate: 2,352€

More accuracy in a few seconds:

By providing some basic information, the estimated monthly rate is calculated individually for you. For this and for all other real estate offers on ohne-makler.net

Based on equity 20% of the purchase price plus the purchase incidental costs / 10 years fixed interest rate / 2% initial repayment / Effective interest rate 3.60%

Details

Condition
As good as new
Number of floors
1
Usable area
70 m²
Bathrooms (number)
2
Bedrooms (number)
2
Number of carports
1
Number of parking lots
3
Flooring
Parquet, Laminate, Tiles
Heating
Central heating
Year of construction
1990
Equipment
Terrace, Garden, Full bath, Shower bath, Sauna, Fitted kitchen, Fireplace
Infrastructure
Pharmacy, Grocery discount, General practitioner, Kindergarten, Primary school, Middle school, High school, Comprehensive school, Public transport

Location

Luhmühlen is a small, rural village that belongs to the joint municipality of Salzhausen.
The town center is approx. 2 km away and offers many shopping facilities, some small stores, doctors and pharmacies.
There is also an outdoor swimming pool within cycling distance.

Salzhausen has a school center with primary and secondary schools and a grammar school.

For riders, Luhmühlen is home to the AZL and several other stables, which can also be reached by bike.

Location Check

Nature
Child Friendliness
Health
Eating Out
Sports
Shopping
Culture
Nightlife
Public Transport

Energy

Main energy source
Gas

Miscellaneous

Broker inquiries not welcome! According to § 7 UWG, unsolicited contact by brokers without the express consent of the recipient is prohibited!

Send a message directly to the seller

Questions about this house? Show interest or arrange a viewing appointment?

Click here to send a message to the provider:

Offer from: A. Witt